Manual steering conversion jeep universal – Advance Adapters 716805 User Manual
Page 5

ADVANCE ADAPTERS INC.
P/N: 716805
P.O. Box 247, 4320 Aerotech Center Way
Paso Robles, CA 93447
PAGE 5 OF 10
Telephone: (800) 350-2223
Fax: (805) 238-4201
Page Rev. Date:
07-09-13
SPECIAL NOTE:
The components packaged in this kit have been assembled and machined for specific type of conversions. Modifications to any of the components
will void any possible warranty or return privileges. If you do not fully understand modifications or changes that will be required to complete your conversion, we strongly
recommend that you contact our sales department for more information. This instruction sheet is only to be used for the assembly of Advance Adapter components.
We recommend that a service manual pertaining to your vehicle be obtained for specific torque values, wiring diagrams and other related equipment. These manuals
are normally available at automotive dealerships and parts stores.
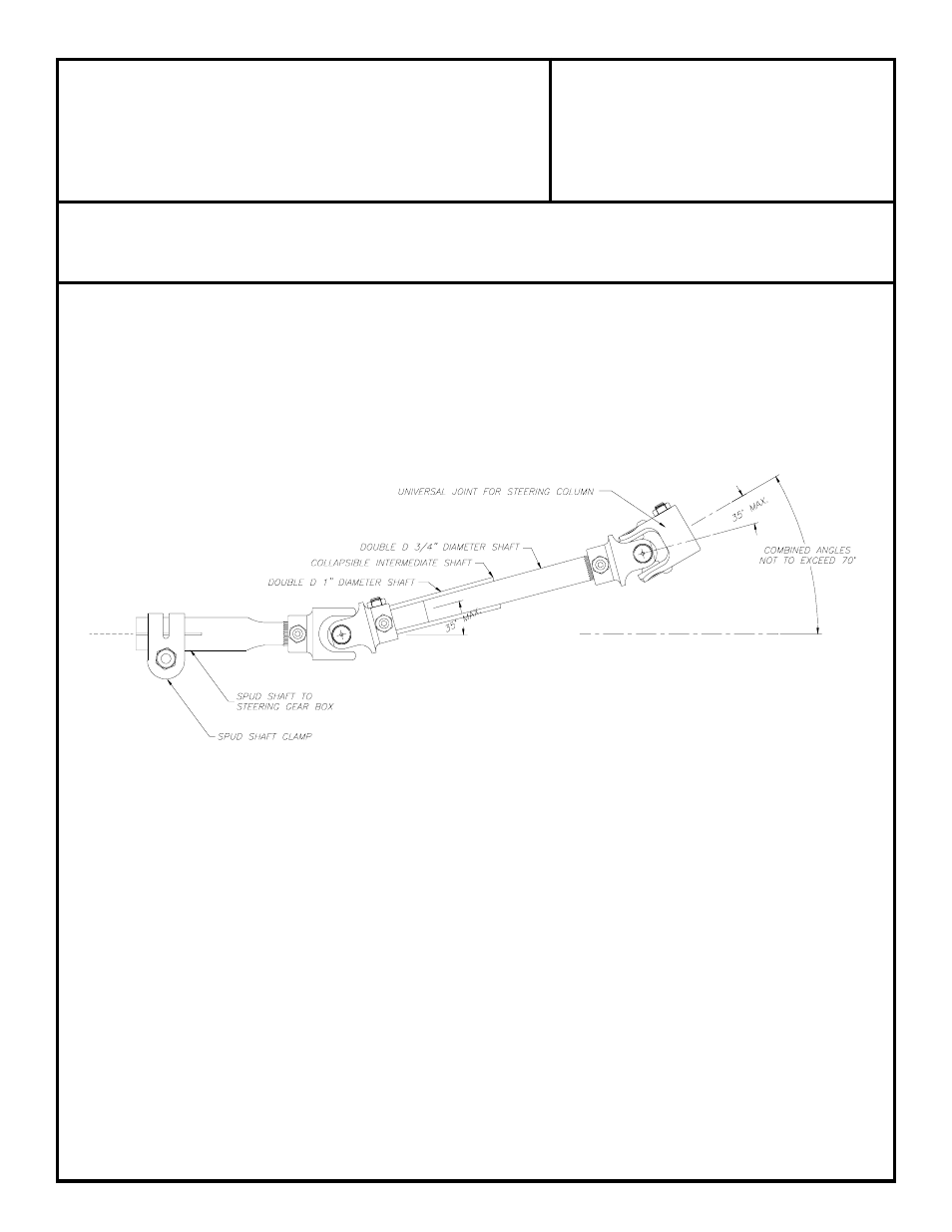
STEERING SHAFT:
The control shaft between the end of the column and the steering box spud shaft is defined as the steering shaft.
With each kit, we have provided a 3/4” DD X 1"DD shaft that has a length of 36”. The shaft can be shortened to the necessary
length for your installation. The new shaft assembly has a 3/4” DD end that will need to fit into the steering column universal
joint. Use the same procedure to spot drill both of the set screws, and Loctite the connections with the two lock nuts. The lower
connection Use the same procedure to spot drill both of the set screws, and Loctite the connections with the two lock nuts.
Always use Loctite on the double set screws and lock nuts for all universal yoke connections.
P/N 716863
P/N 716841
-
Universal Joint (1" DD X 1" DD)
P/N 716843
- Universal Joint 1” DD X 7/8”
P/N 716844
- Universal Joint 3/4”DD X .800 36 Spline
P/N 716845
- Universal Joint 1” DD X .3/4 - 36 Spline
P/N 716847
- Jeep column shaft 3/4” DD x 7/8”
P/N 716846
- Universal Joint 1” DD X .800 36 Spline
P/N 716853
- Universal Joint 3/4” DD x 3/4” - 30
P/N 716854
- Universal Joint 1” DD X 3/4” - 30
ROUTING THE STEERING SHAFT:
Routing the steering driveshaft may seem simple, but care should be taken as to the actual routing.
On some Jeep installations, it may be necessary to go directly through the motor mount. Routes may
be adjusted by changing the angle of the steering box slightly, or by extending the universal yoke from
the column bushing with a spacer. Before any final route is decided, be sure to allow for suspension
travel and engine movement. On some conversions, a third universal yoke might be considered along
with a bearing pillow block.
Manifold clearance on Jeeps with a stock 225 V6. The steering shaft can have some exhaust clearance
issues on some Jeeps. One that was brought to our attention is the Jeep 225 V6 with a Sawinaw steering
swap. The steering shaft hits the stock manifold, two options for clearance would be switch to exhaust
headers for the Jeep or switch to a Buick 231 1975 and newer rear wheel drive vehicle manifold.
MANUAL STEERING CONVERSION
JEEP UNIVERSAL
