Directory
Brands
COOK manuals
Kitchen
Gemini 100 Series
Manual

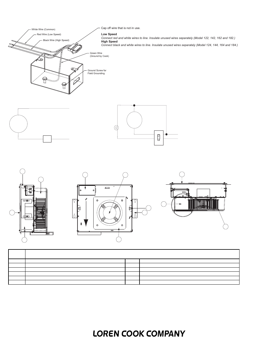
Wiring diagrams, Gemini 100 parts list, Gemini 100 series – COOK Gemini 100 Series User Manual

Page 4

  • Text mode
  • Original mode
Wiring diagrams, Gemini 100 parts list, Gemini 100 series | COOK Gemini 100 Series User Manual | Page 4 / 4 Wiring diagrams, Gemini 100 parts list, Gemini 100 series | COOK Gemini 100 Series User Manual | Page 4 / 4
Pages: 1 2 3 4
  • wrong Brand
  • wrong Model
  • non readable
See also other documents in the category COOK Kitchen:
  • AC (12 pages)
  • ACSC (8 pages)
  • VA (12 pages)
  • ASP (8 pages)
  • Automatic Belt Tensioner Supplement I (2 pages)
  • Automatic Belt Tensioner Supplement II (2 pages)
  • CA (16 pages)
  • CA-4 (1 page)
  • CCP (8 pages)
  • CFS (8 pages)
  • CIC (12 pages)
  • CPL (8 pages)
  • CV (8 pages)
  • Duct Blower (8 pages)
  • EC Motor Wiring (1 page)
  • Constant Pressure Control System (2 pages)
  • Economizer Fan (8 pages)
  • ERV (16 pages)
  • ERV Evaporator Coil Supplement (2 pages)
  • ERV Fluid Coil Supplement (2 pages)
  • FCE (6 pages)
  • FCP (8 pages)
  • Gemini (8 pages)
  • Gemini (1 page)
  • GEMINI 100 SERIES PRE-2014 MOTOR (1 page)
  • GEMINI 200, 300, & 500 PRE-2014 MOTOR (1 page)
  • Curtain Style Ceiling Radiation Damper (1 page)
  • Gemini with Motion Sensor (2 pages)
  • GI (4 pages)
  • HMD EN (16 pages)
  • Hinged Base (2 pages)
  • IMH (8 pages)
  • Inlet Vane Damper (1 page)
  • Laboratory Exhaust (17 pages)
  • Laboratory Exhaust (4 pages)
  • Laboratory Exhaust (18 pages)
  • Power-Plume (4 pages)
  • TCN (12 pages)
  • QMX (12 pages)
  • LC (8 pages)
  • Lo-Pro (8 pages)
  • Motor Pack (2 pages)
  • Universal Motor Pack (2 pages)
  • PR (2 pages)
Home Brands Popular manuals Recently added
Manuals Directory

© 2012–2025, azmanual.top
All rights reserved.