Optional hookups, Optional hookup diagram, Maintenance – Altronix AL1002ULADAJ Installation Instructions User Manual
Page 8: Fig. 3, Fig. 3a

- 8 -
AL1002ULADAJ
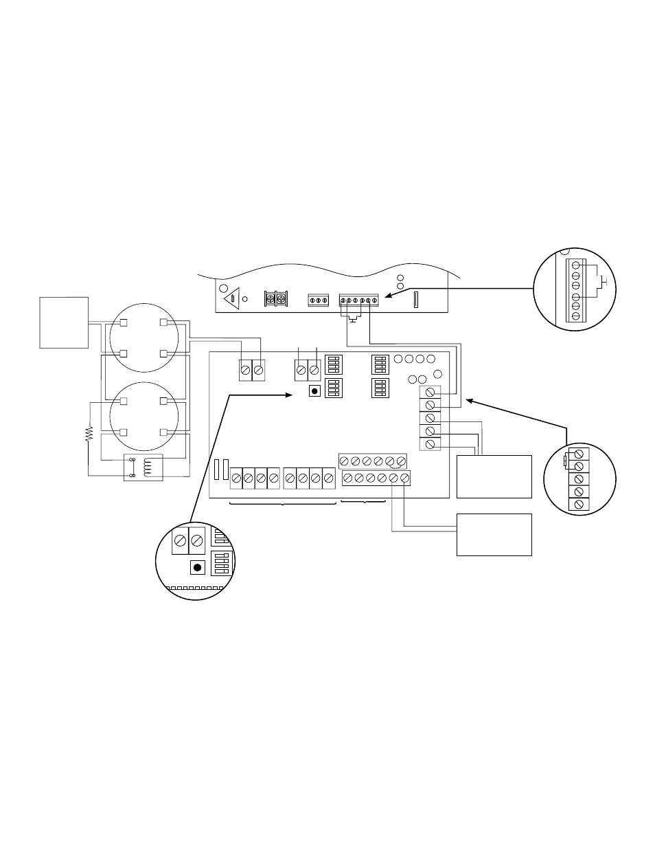
Optional hookups:
1- Battery and AC monitoring: AC or Battery Fail condition will cause the common trouble input [C “FAULT” NC] to
report back to the FACP via input 1 and input 2. The common trouble input may also be used for other optional
supervisory monitoring.
To report AC and Battery Trouble connect the battery and AC Fail relay output shown in (Fig. 3a, pg. 8) to the
common trouble input.
2- Dry contact input (C “DRY1” NC) (C “DRY2” NC) can be used to alarm output from an
addressable module (these inputs are unidirection and cannot report back to trigger module).
Connection to triggering devices must be made within 20ft of distance and using conduit for wiring.
3- Auxiliary output (-AUX+) 24VDC at 1 amp max.
4- AC Local [NC, NO, C] should connect to the host control panel for local annunciation of
the trouble condition.
Note:
If common trouble input, terminals marked [C “FAULT” NC] are not used, these terminals must be
shorted (connect jumper) to remain inactive. For optional hookups (Fig. 3b, pg. 8).
Optional Hookup Diagram:
Fig. 3
Maintenance:
Unit should be tested at least once a year for the proper operation as follows:
Output Voltage Test: Under normal load conditions, the DC output voltage should be checked for proper voltage level
(26.2-26.4VDC recommended range).
Battery Test: Under normal load conditions check that the battery is fully charged. Check specified voltage
both at battery terminal and at the board terminals marked [+ BAT -- ] to ensure that there is no break in the battery
connection wires.
Fuses: Check input and output fuses on the power supply board, replace if necessary. Input fuse rating is
6.3 amp @ 250V, Output fuse rating is 15 amp @ 32V
Note: Maximum charging current is 1.5 amp.
Note: Expected battery life is 5 years; however, it is recommended changing batteries in 4 years or less if needed.
These circuits are used to monitor AC and
Bat Fail and will cause a simultaneous trouble
condition to the FACP's IN1 and IN2 (Non-Supervised)
4-wire Smoke
Detector
+
--
+
--
4-wire Smoke
Detector
Fire Alarm
Control Panel
(FACP)
EOL Power
Supervision Relay
(Not Supplied)
EOL
Resistor
from FACP
SW1
-- DC +
SW2
+ OUT1 --
OUT1 OUT2 OUT3 OUT4
INP1 INP2
FAULT
NC
C
NO
C "F
AUL
T" NC
OUT1
OUT3
OUT2
OUT4
INPUT SELECT
TEMPORAL
STROBE SYNC
IN > OUT SYNC
IN1+ IN1--
IN2--
IN2+
C "DRY1" NC
RET1+ RET1--
RET2--
RET2+
C "DRY2" NC
+ OUT2 --
+ OUT3 --
+ OUT4 --
INPUT SELECT
TEMPORAL
STROBE SYNC
IN > OUT SYNC
-- AUX +
UPPER TERMINALS
LOWER TERMINALS
Addressable Control
Module Trigger Output
See Note 2
(Non-Supervised)
RESET
Supervised
Non-Supervised
Input from
Power Supply
BA
T F
AIL
AC F
AIL
DC
AC
AC DELA
Y
NC C NO NC C NO
AC LOCAL
NC C NO
L
N
6.3A
250V
Digital Communicator
or Local Annunciator
Dry output Contact
(Form "C" contacts)
Power-Limited Outputs
2.5 amp per output in alarm
Total = 10 amp
(Supervised)
AC F
AIL
NC C NO
BA
T F
AIL
NC C NO
Fig. 3a
-- DC +
OUT1
OUT3
OUT2
OUT4
INPUT SELECT
TEMPORAL
STROBE SYNC
IN > OUT SYNC
INPUT SELECT
TEMPORAL
STROBE SYNC
IN > OUT SYNC
RESET
Fig. 3c
Trouble Memory
Reset Button
Fig. 3b
Common
trouble
Input/Output
NC
CN
OC
"F
AUL
T" NC