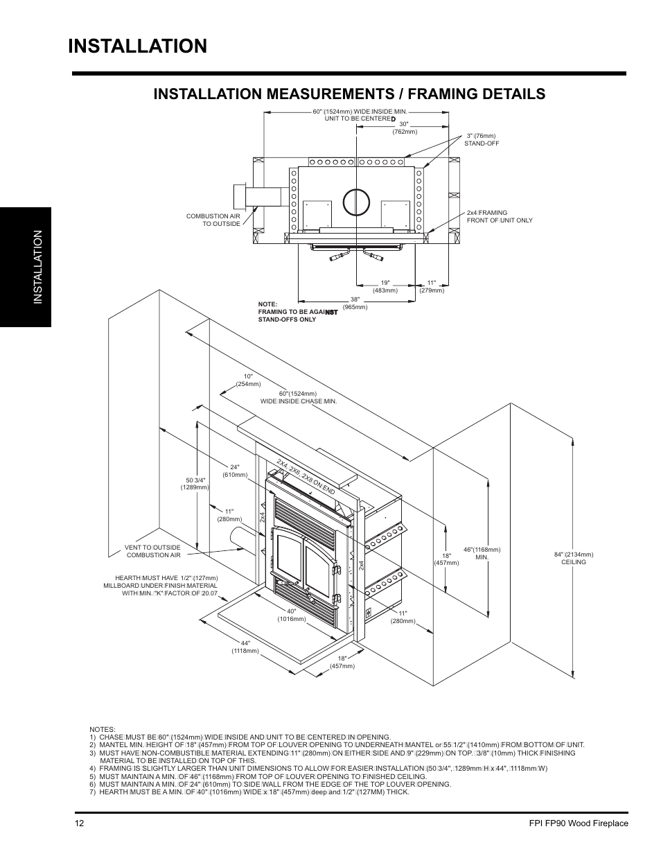
Installation, Installation measurements / framing details, Inst alla tion – Regency FP90 User Manual
Page 12
See also other documents in the category Regency Kiln:
- HI200 (16 pages)
- 946-523/P (10 pages)
- P48-NG (48 pages)
- Natural Living Gas Fireplaces (9 pages)
- P42-LP4 (48 pages)
- Sunrise Gas Fireplace L676S-NG (3 pages)
- F2400 (24 pages)
- LIBERTY L900-LP (56 pages)
- 944-072 (24 pages)
- P40-LP1 (7 pages)
- Zero Clearance Direct Vent Gas Fireplace P36-NG4 (68 pages)
- P48-NG2 (7 pages)
- P33R-NG2 (40 pages)
- U31-NG2 (2 pages)
- L234-LP (40 pages)
- Panorama P131 (32 pages)
- Liberty L676 (56 pages)
- I1100S (20 pages)
- FREESTANDING WOODSTOVES S3100L (28 pages)
- NATURAL GAS U32-LP4 (40 pages)
- Sunrise U32S-LP5 (36 pages)
- P121RC (48 pages)
- R90 (3 pages)
- Zero Clearance Direct Vent Gas Fireplace P121/P131-NG2 (7 pages)
- Sunrise E33S (2 pages)
- Horizon HZ54 (48 pages)
- Zero Clearance Direct Vent Gas Fireplace P36D-LP1 (8 pages)
- E21-NG1 (32 pages)
- F1100S (28 pages)
- P40-LP (56 pages)
- E21-LP2 (32 pages)
- Panorama P36D (72 pages)
- I2100M (20 pages)
- I1200 (2 pages)
- LIBERTY L676E-LP (48 pages)
- E21-NG2 (32 pages)
- G36D (44 pages)
- U32-NG3 (36 pages)
- U32-NG5 (2 pages)
- E21 (12 pages)
- Bellavista Gas Fireplace B36X (64 pages)
- P131 (44 pages)
- P33-LP3 (48 pages)
- WARMHEARTH Z2510L (24 pages)
- Gas Insert U35-LP1 (2 pages)
