Search
Directory
Brands
Crompton Controls manuals
Monitors
DCM
Manual
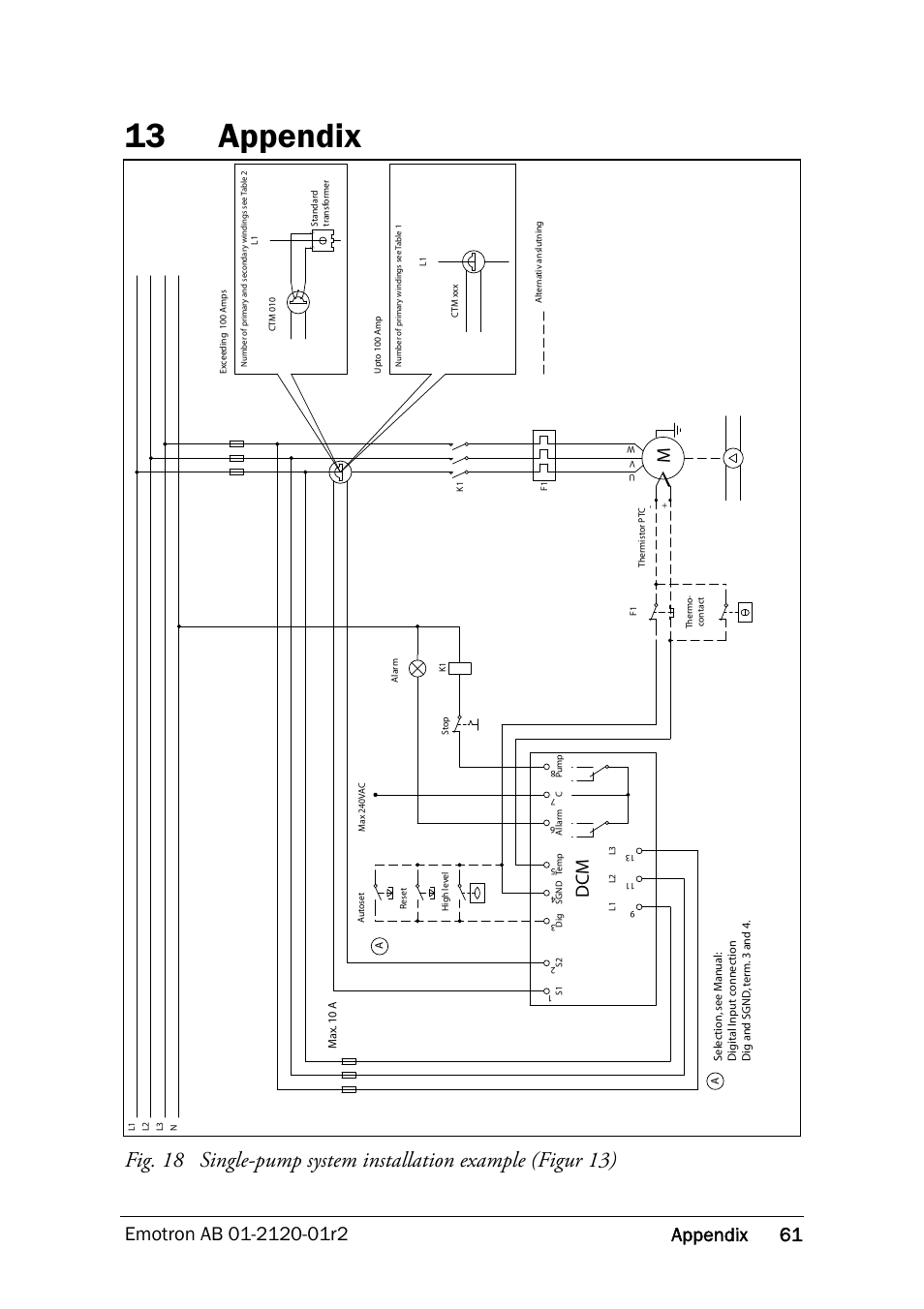
13 appendix, Appendix, Appendix, chapter 13) – Crompton Controls DCM User Manual
Page 62
Text mode
Original mode
13 appendix, Appendix, Appendix, chapter 13) | Crompton Controls DCM User Manual | Page 62 / 64
Pages:
1
…
59
60
61
62
63
64
wrong Brand
wrong Model
non readable
See also other documents in the category Crompton Controls Monitors:
M10
(34 pages)
M20
(56 pages)