Application wiring examples, 16 sensaguard, Installation instructions – Rockwell Automation 440N SensaGuard Integrated Latch Unique Coded Installation Instructions User Manual
Page 16

16
SensaGuard
TM
Installation Instructions
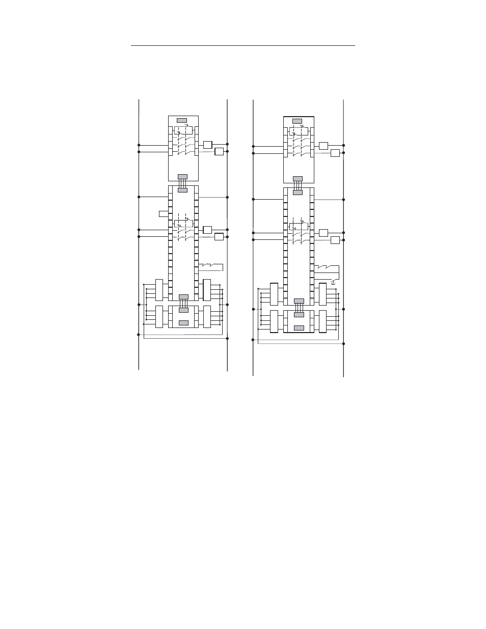
MSR200 series with 4 sensors, automatic r
eset, driving 100S or 700S safety contactors.
Yellow
Red
+24V DC
GND
440R-H23177
Y40
Y41
S51
S12
S20
S32
S11
S21
S31
S41
13
23
31
Y42
A1
S32
S20
S12
S42
S50
S62
S34
Y1
Y2
Y3
14
24
32
Y32
Y33
Y30
A2
S62
S50
S42
440R-H23179
K1
S32
S20
S12
S62
S50
S42
S32
S32
440R-H23180
MSR221P
MSR211P
MSR230P
K2
K1
K2
K3
K4
SensaGuar
d
SensaGuar
d
Blue
Brown
Gray
Pink
Blue
Brown
Yellow
Red
Gray
Pink
SensaGuar
d
S
ensaGuar
d
Gray
Pink
Gray
Pink
Blue
Brown
Yellow
Red
Blue
Brown
Yellow
Red
MSR200 series with 4 sensors, manual r
eset, drivin
g
100S or 700S safet
y contactors.
Reset
+24V DC
GND
440R-H23177
Y40
Y41
S51
S12
S20
S32
S11
S21
S31
S41
13
23
31
Y42
A1
S32
S20
S12
S42
S50
S62
S34
Y1
Y2
Y3
14
24
32
Y32
Y33
Y30
A2
S62
S50
S42
440R-H23179
K1
S32
S20
S12
S62
S50
S42
S32
S32
440R-H23180
MSR221P
MSR211P
MSR230P
K2
K1
K2
K3
K4
SensaGuar
d
SensaGuar
d
Blue
Brown
Gray
Pink
Blue
Brown
Yellow
Red
Yellow
Red
Gray
Pink
SensaGuar
d
SensaGuar
d
Gray
Pink
Gray
Pink
Blue
Brown
Yellow
Red
Blue
Brown
Yellow
Red
Note: Refer to Technical Specifications for Certification information and ratings.
Application Wiring Examples
- 20P PowerFlex DC Drive - Frame D Bimetal Thermostat (10 pages)
- 1336S_F_T_E_R F Frame Snubber Resistor Repl. (6 pages)
- 22-COMM PowerFlex 4-Class DSI (Drive Serial Interface) Network Communication Adapter (4 pages)
- 8-545 Plug In Solid State Relay (2 pages)
- 20-HIM-B1 PowerFlex 7-Class HIM Bezel (DPI) (4 pages)
- 100 Contactors with DC Coil (1 page)
- 100 Contactors with DC Coil (2 pages)
- 20P PowerFlex DC Drive - Frame D Switching Power Supply Circuit Board (6 pages)
- 140G-MTFx_MTHx_MTIx_MTKx Trip Unit Installation-140G-M (6 pages)
- 45BRD Analog Laser Sensor (4 pages)
- 20D Multi-Device Interface Option Board for PowerFlex 700S Drives (20 pages)
- 56RF RFID 18 mm Cylindrical Transceiver (2 pages)
- 42KC Miniature Rectangular: 5V DC Version (2 pages)
- 20P PowerFlex DC Drive - Frame A Switching Power Supply Circuit Board (16 pages)
- 21P-MISC-A-TP-2 Transition Tube Kit #C19-6/7 For PowerFlex 755 w/OEM Liquid Cooling Fr 6/7 Drive (2 pages)
- 42BT Background Suppression Sensor (3 pages)
- 42CB High Speed 18mm Cylindrical (4 pages)
- 140EX-JE2_JE3 Molded Case Circuit Breaker (4 pages)
- 140G-K-EAM1A Early Make Aux Contact for Rotary Handle Oper Mech-140G-K (1 page)
- 140G-K-EAM1A Early Make Aux Contact for Rotary Handle Oper Mech-140G-K (3 pages)
- 20-HIM-A6 PowerFlex (Human Interface Module) (74 pages)
- 42CF General Purpose 12mm Cylindrical (4 pages)
- 20D PowerFlex 700S Phase II Drive Frames 1...6 (80 pages)
- 140EX-HE1_HE2 Molded Case Circuit Breaker (4 pages)
- 140EX-HE1_HE2 Molded Case Circuit Breaker (6 pages)
- 20B PowerFlex 700 Custom Firmware - Pump Off (12 pages)
- 20-WIM-N4S DPI Wireless Interface Module (92 pages)
- 140U H-Frame Circuit Breaker Fixed and Adjustable Thermal Trip (7 pages)
- 140U H-Frame Circuit Breaker Fixed and Adjustable Thermal Trip (2 pages)
- 60-2619, 42JS Swivel/Tilt Mounting Bracket (1 page)
- 22A PowerFlex 4/40/400 Flange Mount (4 pages)
- 45MLA Controller Installation Instructions (16 pages)
- 20P PowerFlex DC Drive - Cooling Fan for Frame A Drives Above 73A at 230V 460V AC (6 pages)
- 42JS Series 7000 to 42JS VisiSight Replacement Kit (2 pages)
- 22A PowerFlex 4-Class HIM Bezel (DSI) (4 pages)
- 42CS Stainless Steel Photoelectric Sensors (4 pages)
- 20L-LL PowerFlex 700L Liquid-to-Liquid Heat Exchanger (40 pages)
- 20P PowerFlex DC Drive - Frame B SCR Modules (20 pages)
- 22B PowerFlex 40 Quick Start FRN 5.xx - 6.xx (161 pages)
- 22B PowerFlex 40 Quick Start FRN 5.xx - 6.xx (22 pages)
- 22F PowerFlex 4M Input RFI Filters (2 pages)
- 45LFM Capacitive Label Sensor (4 pages)
- 140G-Rx Installation Instruction-140G-R (2 pages)
- 140G-Rx Installation Instruction-140G-R (29 pages)
- 22C PowerFlex 400 AC Drive Quick Start - FRN 1-4.xx (28 pages)
