ROHM LHS-L - Air-actuating cylinders User Manual
Page 21

4
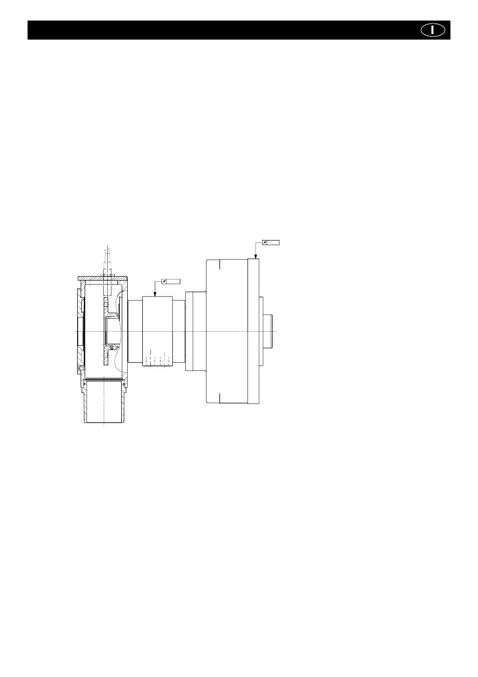
3.5 Serrare le viti di fissaggio della flangia intermedia con il mo-
mento torcente di serraggio raccomandato delle norme VDI.
Vedasi anche la tabella delle coppie di serraggio.
3.6 Togliere i tappi protettivi dai bocchettoni di raccordo e colle-
gare le tubature di pressione. Si consiglia di custodire i tappi
che, dovendo più tardi effettuare uno smontaggio, possono
essere utili. I collegamenti pneumatici con il distributore d’aria
devono essere esenti da impuritá. Il sistema migliore è di sof-
fiare con lieve pressione prima dell’allacciamento. E’da evitarsi
ad ogni costo l’infiltrazione di trucioli nel corpo del distributore
per non incorrere
in danni irriparabili all’albero del distributore o alle valvole di
sicurezza.
Inoltre questi collegamenti devono essere flessibili e non de-
vono esercitare pressione alcuna sul distri-butore. Ciò vale
anche per il bocchettone del refrigerante e il tubo flessibile che
dovrà essere fissato dal cliente per mezzo di una pinza. Que-
sto tubo dovrebbe essere in materiale trasparente e convog-
liare il refrigerante, senza flessioni o risalite, direttamente nel
serbatoio.
Per ingrasare l’aria compressa raccomandiamo
l’ingrassatore ”BOSCH Ökonomic NL4”.
3.7 Il dispositivo di protezione antitorsione sul corpo del distribu-
tore deve essere eseguito da parte del cliente. A tale scopo si
usa fissare sul corpo del mandrino una staffa dello spessore di
ca. 8 mm che cinge a forcella il distributore dove si trova il
bocchettone di scarico del refrigerante. Il bocchettone di sca-
rico deve essere verticale, rivolto verso il basso. Anche qui
bisogna osservare scrupolosamente che il dispositivo antitor-
sione non eserciti alcuna sollecitazione assiale sul distributore
(dilatazione termica).
3.8 Dopo il montaggio del cilindro con gli elementi di trazione si
può procedere al montaggio dell’autocentrante. Occorre far
presente che, dopo il serraggio della flangia del cilindro sul
mandrino della macchina, non è più possibile alcun collega-
mento con l’autocentrante o i relativi elementi di trazione
dall’estremità posteriore dal mandrino.
0,015
0,01
Controllo del movimento di serraggio
A. Misure 26 e 38: Il controllo del movimento di ser-
raggio si trova, nelle misure 26 e 38, in prossimità
della bacinella di raccolta del refrigerante.
B. Misure 42 e 62: Il controllo del movimento di ser-
raggio si trova, nelle misure 42 e 62, in prossimità
della bacinella di raccolta del refrigerante e del
corpo stantuffo.
D
Il controllo del movimiento avviene, per tutte le mis-
ure, attraverso un disco di comando fissato al pi-
stone di serraggio. Due interruttori induttivi acqui-
stabili come accessori, sono sistemati ciascuno su
un listello di finecorsa. Ognuno è regolabile a varia-
zione continua, allentado le due viti, ed è poi ribloc-
cabile.
D
Il movimento di serraggio viene determinato di
norma dalla corsa dello stantuffo dell’autocentrante
in funzione.
D
Registrare gli interruttori di prossimità secondo il
campo di lavoro dell’autocentrante oppure se-
guendo le prescrizioni del costruttore.
D
Negli autocentranti forniti delle griffe base a cambio
rapido, il controllo movimento di serraggio, in colle-
gamento alla macchina, deve essere protetto elet-
tricamente in modo tale da non consentire l’avvia-
mento del mandrino nella posizione ”cambio griffe”.
D
Di norma vengono controllate le seguenti posizioni:
-- griffe completamente aperte,
-- griffe completamente chiuse
Con un ulteriore interruttore di prossimità è inoltre
possibile, se il ciclo delle funzioni lo permette, inter-
rogare attivamente la posizione di serraggio.
Prova di funzionamento:
Di norma, non appena attivata la funzione del cilindro,
si consiglia una prova di funzionamento. A tale scopo:
D
regolare una pressione più bassa (ca. 4 bar) nel
sistema pneumatico,
D
quando l’autocentrante è montato, confrontare le
posizioni raggiunte degli elementi dell’autocentrante
(griffe, punta, trascinatore o simili), con i valori indi-
cati sul relativo disegno dell’autocentrante
D
verificare le posizioni del disco di comando raggi-
unte.
Se le misure sono discordanti, ricercarne le cause ed
eliminare subito le differenze.
Mandrino macchina