WARN ENDURANCE 12.0 XE User Manual
Page 6

WARN INDUSTRIES * WINCH
7
MOUNTING WINCH
MOUNTING WINCH
Choose a mounting location
that is suffi ciently strong enough
to withstand the loads you intend
to winch. Only the mounting
orientations shown are possible for
safe winching operation. All others
are improper and inappropriate.
The use of recommended bolt
and lock washer combinations
torqued to recommended levels will
prevent vibration during operation.
The mounting details indicate the
proper torque levels.
Remember the winch rope
must always spool onto the drum
as indicated by the drum rotation
decal.
Refer to the following
diagrams for proper mounting
orientation.
WARNING
Never use bolts
that are too long.
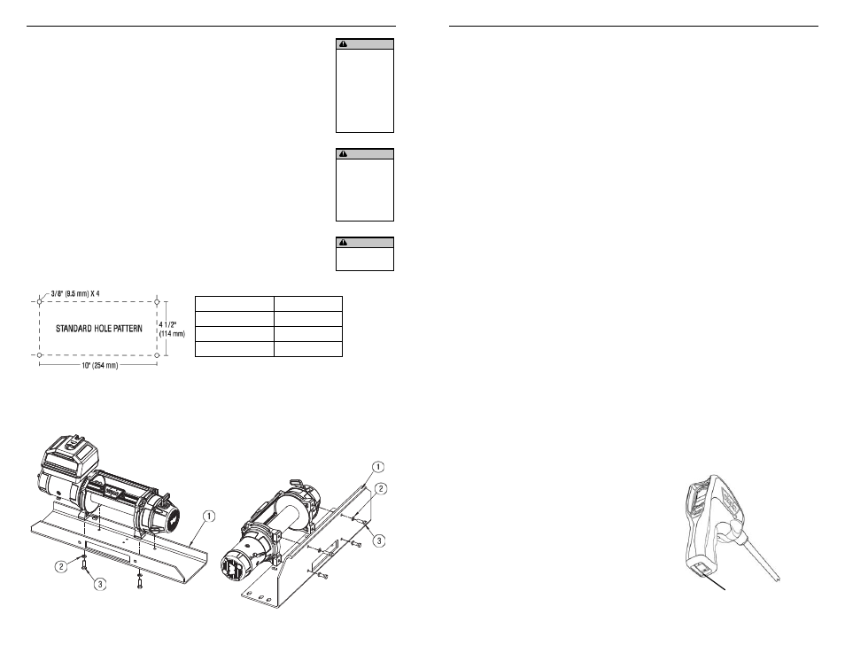
Mounting Details:
(1) Smooth and fl at, thickness = 1/4” (6.4 mm)
(2) 3/8” (9.525 mm) lockwasher X 4
(3) 3/8-16 X 1 1/4” long, grade 5 bolt X 4
Torque 30-35 ft. lbs. (41-47Nm)
Control Pack Installation
Mount the control pack
according to the instructions
included in the WARN mounting
system kit. Use the bracket
included in the kit.
The control pack mounting
fasteners may also be moved to
the unused holes in the control
pack base plate for additional
mounting fl exibility.
Mounting Bolt Pattern:
Standard: 10” x 4.5”, 254 mm x 114.3 mm
WARNING
Always choose
a mounting
location that is
suffi ciently strong
to withstand the
maximum pulling
capacity of your
winch.
WARNING
Always complete
the winch
installation and
attach the hook
before installing
the wiring.
Plate Thickness
Bolt Length
1/4” (7 mm)
1.25” (32 mm)
3/8” (10 mm)
1.5” (40 mm)
1/2” (13 mm)
1.5” (40 mm)
WARN INDUSTRIES * WINCH
8
MOUNTING COOLING FAN
COOLING FAN MOUNTING
The fan must be correctly
installed to provide the best
performance. The fan should be
mounted in a location that is as
clean, dry, and cool as possible.
The mounting location must also
provide clearance for the fan’s
control cable as well as the outlet
hose. When mounting the fan,
insure that the inlet is unobstructed
and higher than the winch. Also
insure that the winch exhaust outlet
is not near the fan inlet.
Best locations for the fan will
vary depending on the vehicle.
Typical location include: near
air intake box and inner fender
inside engine compartment.
Avoid mounting fan near exhaust
manifold, turbocharger, or radiator.
Maximum operating temperature is
175°F (80°C). Avoid sharp edges
when routing fan control cable and
hose.
If your vehicle is used in
extremely dusty conditions you can
choose to equip the winch cooling
fan with a high performance
fi lter. Filter part number RC-0790
available from K&N Filters is
recommended for this application.
The fi lter can be installed directly to
the fan inlet.
Mounting Steps
1. Determine the fan mounting
location.
2. Mount fan on a fl at surface,
mark and drill mounting holes.
3. Loosely attach the fan using
WARN supplied 1/4-inch bolts,
lock nuts, and washers or sheet
metal screws.
4. Tighten fasteners.
5. Attach hose to fan outlet.
6. Route fan outlet hose to winch
and tie down with tie wraps. Cut
off excess hose.
7. Thread plastic fi ttings into winch
motor end cap. Tighten and align
fi tting with hose.
Cooling Fan
The cooling fan is used
to cool the winch motor. A
thermostat inside the winch motor
automatically controls the fan
and turns it on and off according
to the winch motor temperature.
The fan will not run until the winch
motor reaches a predetermined
temperature.
There is also a fan override
switch in the remote handle that
can be used to operate the fan.
When properly connected the
fan delivers cooling air that fl ows
through the inlet hose to the winch
motor. Hot air from the winch motor
is exhausted through the outlet
hose.
See the Cooling Fan Mounting
Instructions for proper fan, hose,
and control cable installation.
8. Connect the fan outlet hose to
the plastic fi tting positioned
above the “W” on the motor end
cap.
9. Route fan control cable along
fan outlet tubing and attach with
tie wraps.
10. Connect fan control cable to
plug behind and below winch
control pack.
11. Connect the remaining hose to
the plastic fi tting positioned
below the “W” on the motor end
cap.
12. Route winch exhaust hose and
tie down with tie wraps. Cut off
excess hose.
Fan Override Switch
