Flowserve IDP CPXV User Manual
Page 43

CPXV and CPXRV USER INSTRUCTIONS ENGLISH 71569193 09-14
Page 43 of 48
flowserve.com
8.6.2
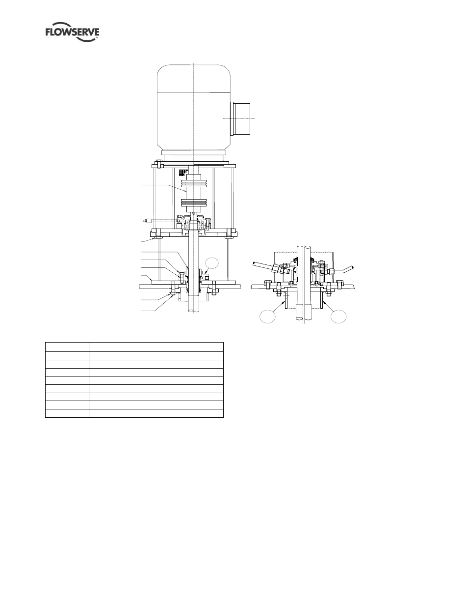
CPXV optional features (spacer coupling)
7000.1
C
B
6570.9
4200
3160.2
6572.2
6580.2
6572.1
A
6580.3
(Half section)
(Half section)
Reference
Name of part
3160.2
Motor pedestal (spacer)
4200
Mechanical seal
6570.9
Screws (spacer/motor stool)
6580.3
Nuts (seal cover)
6580.2
Nuts (column/sole plate)
6572.2
Studs (seal cover)
6572.3
Studs (column/sole plate)
7000.1
Coupling, spacer type
CPXV special build parts shown
spacer coupling
cartridge mechanical seal
A.
proprietary
B.
FPD unbalanced
C.
FPD balanced (when fitted)
This manual is related to the following products: