Search
Directory
Brands
Dacor manuals
Fans
EH36
Manual
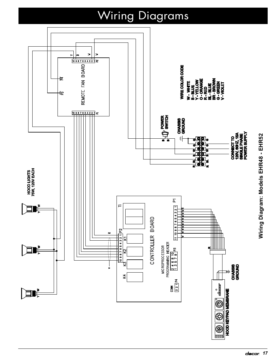
Wiring diagrams, Wiring d iagram: models ehr 48 - ehr 52, Controller board – Dacor EH36 User Manual
Page 47
Text mode
Original mode
Wiring diagrams, Wiring d iagram: models ehr 48 - ehr 52, Controller board | Dacor EH36 User Manual | Page 47 / 48
Pages:
1
…
43
44
45
46
47
48
wrong Brand
wrong Model
non readable
This manual is related to the following products:
EH42
MH36
See also other documents in the category Dacor Fans:
EH5418SCH
(2 pages)
MILLENNIA DHI421
(12 pages)
EH30
(12 pages)
DHI602
(16 pages)
ILHSF10
(2 pages)
EPICURE EH42
(12 pages)
ERV48-ER
(12 pages)
EH
(3 pages)
IVSR2
(1 page)
ER30D-C
(36 pages)
ESG366LP
(2 pages)
RV36
(12 pages)
ERV48
(12 pages)
IVS2
(12 pages)
ESG486
(2 pages)
RV30
(12 pages)
CABP3
(2 pages)
Preference PHW
(16 pages)
PREFERENCE PHW30
(12 pages)
MH30
(24 pages)
ILb10
(1 page)