Header operation operating variables – MacDon 962 Harvest Header User Manual
Page 21

21
HEADER OPERATION
Operating Variables
To adjust delivery opening width (continued)
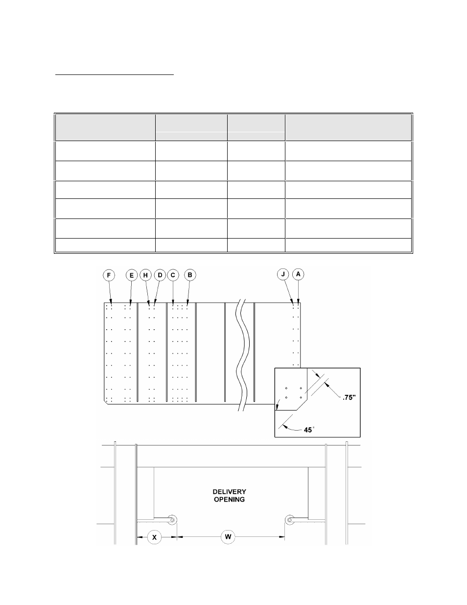
2. Remove screws from draper connector slat.
3. Use the following chart to position draper connector tubes at the appropriate rows of holes and position
rollers at center opening for the desired application.
CONNECTION
CENTER DELIVERY
OPENING WIDTH (W)
(between rollers)
LEG TO
ROLLER EDGE
(DIM. X)
DESIGNATED APPLICATION
and COMMENTS
Row A to Row F (both drapers)
33.9" (860 mm)
22.4" (568 mm)
Opening for combine models: Case 60 & 66
Series, NH-TR and Gleaner
Row A to Row E (both drapers)
41.7" (1060 mm)
18.4" (468 mm)
Opening for combine models: Case 80 & 88
Series
Row A to Row H (both drapers)
49.6" (1260 mm)
14.4" (365 mm)
Opening for Cat 450 & 470 Series
Row J to Row D (both drapers)
53.5" (1360 mm)
12.4" (315 mm)
Opening for combine models: JD STS,
CTS, 9500, 9510 and NH-TX
Row A to Row C (both drapers)
59.5" (1510 mm)
9.6" (243 mm)
Opening for combine models: JD 9600,
9610, 9650 and Cat 460 & 480 Series
Row A to Row B (both drapers)
65.8" (1670 mm)
6.4" (163 mm)
Maximum opening for windrowing
