Instalación del sistema de altavoces, Single), Assign able assignable assignable – Pioneer VSX-1021 User Manual
Page 117: Monitor out monitor out, Assignable, Speaker impedance 6 -16, Enceinte d’impedance de 6 -16, For wireless lan, Output 5 v 0.6 a max), 02 conexión del equipo

Es
9
02
Conexión del equipo
Instalación del sistema de altavoces
Los únicos altavoces necesarios como mínimo son los altavoces delanteros izquierdo y derecho.
Tenga en cuenta que los altavoces de sonido envolvente principales deben conectarse siempre
juntos, pero si lo desea puede conectar un único altavoz de sonido envolvente trasero (que debe
conectarse al terminal de sonido envolvente trasero izquierdo).
Conexión de sonido envolvente estándar
HDMI
VIDEO
CONTROL
IR
COMPONENT VIDEO
VIDEO 1 IN
TV/SAT
IN
ZONE 2
DVR/BDR CD-R/TAPE ZONE 2
DVR/
BDR
OUT
OUT
DVD IN
IN
IN
IN
IN
CD
L
R
L
R
IN
L
R
OUT
OUT
VIDEO 1
IN
DVD IN
BD IN
DVR/BDR IN
FM UNBAL
75
FRONT
CENTER
SURROUND
SURROUND BACK / ZONE 2
R
L
R
L
R
L
R
L
(Single)
AM LOOP
(
CD
)
(
DVD
)
TV/SAT VIDEO 1 DVD
Y
P
B
P
R
(
DVR/BDR
)
(
TV/SAT
)
COAXIAL
(10/100)
LAN
AUDIO
PRE OUT
SPEAKERS
ANTENNA
OPTICAL
ASSIGN
ABLE
ASSIGNABLE
ASSIGNABLE
OUT
MONITOR
OUT
MONITOR
OUT
SUBWOOFER
IN
1
(DVD)
IN
1
(DVR/
BDR)
IN
2
ASSIGNABLE
1
IN
1
IN
2
IN
1
IN
2
SEE INSTRUCTION MANUAL
SELECTABLE
SELECTABLE
VOIR LE MODE D’EMPLOI
CAUTION:
SPEAKER IMPEDANCE
6 -16 .
ATTENTION:
ENCEINTE D’IMPEDANCE DE
6 -16 .
FRONT HEIGHT / WIDE /
B
A
OUT
IN
OUT
IN
DC OUTPUT
for WIRELESS LAN
(OUTPUT 5 V
0.1 A MAX)
ADAPTER PORT
(OUTPUT 5 V 0.6 A MAX)
AC IN
LINE LEVEL
INPUT
Los terminales de altavoces altos delanteros también se pueden
usar para los altavoces anchos delanteros y los altavoces B.
Ajuste de altavoz alto delantero
Altavoz alto delantero derecho
Altavoz alto delantero izquierdo
Ajuste de altavoz ancho delantero
Altavoz ancho delantero derecho
Altavoz ancho delantero izquierdo
Ajuste de altavoces B
Altavoz B - derecho
Altavoz B - izquierdo
Delantero derecho
Central
Subwoofer
Delantero izquierdo
Los terminales traseros de sonido envolvente
también se pueden usar para la ZONE 2.
Sonido
envolvente
izquierdo
Ajuste envolvente de 5.1 canales
No conectado
No conectado
Ajuste envolvente de 6.1 canales
No conectado
Sonido envolvente trasero
Ajuste envolvente de 7.1 canales
Sonido envolvente trasero derecho
Sonido envolvente trasero izquierdo
Ajuste de ZONE 2
ZONE 2 - Derecho
ZONE 2 - Izquierdo
Sonido
envolvente
derecho
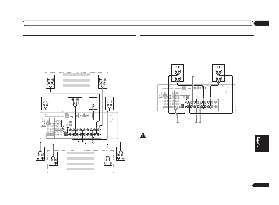
Biamplificación de los altavoces
El concepto biamplificación implica conectar el excitador de alta frecuencia y el excitador de baja
frecuencia de los altavoces a distintos amplificadores para obtener una mejor división de las fre-
cuencias. Los altavoces deben tener la capacidad de biamplificación para que sea posible realizar
esta conexión (deben tener terminales independientes para las frecuencias altas y bajas), y la
mejora en el sonido dependerá del tipo de altavoces que se utilice.
HDMI
VIDEO
CONTROL
IR
COMPONENT VIDEO
VIDEO 1 IN
TV/SAT
IN
ZONE 2
DVR/BDR CD-R/TAPE ZONE 2
DVR/
BDR
OUT
OUT
DVD IN
IN
IN
IN
IN
CD
L
R
L
R
IN
L
R
OUT
OUT
VIDEO 1
IN
DVD IN
BD IN
DVR/BDR IN
FM UNBAL
75
FRONT
CENTER
SURROUND
SURROUND BACK / ZONE 2
R
L
R
L
R
L
R
L
(Single)
AM LOOP
(
CD
)
(
DVD
)
TV/SAT VIDEO 1 DVD
Y
P
B
P
R
(
DVR/BDR
)
(
TV/SAT
)
COAXIAL
(10/100)
LAN
AUDIO
PRE OUT
SPEAKERS
ANTENNA
OPTICAL
ASSIGN
ABLE
ASSIGNABLE
ASSIGNABLE
OUT
MONITOR
OUT
MONITOR
OUT
SUBWOOFER
IN
1
(DVD)
IN
1
(DVR/
BDR)
IN
2
ASSIGNABLE
1
IN
1
IN
2
IN
1
IN
2
SEE INSTRUCTION MANUAL
SELECTABLE
SELECTABLE
VOIR LE MODE D’EMPLOI
CAUTION:
SPEAKER IMPEDANCE
6 -16 .
ATTENTION:
ENCEINTE D’IMPEDANCE DE
6 -16 .
FRONT HEIGHT / WIDE /
B
A
OUT
IN
OUT
IN
DC OUTPUT
for WIRELESS LAN
(OUTPUT 5 V
0.1 A MAX)
ADAPTER PORT
(OUTPUT 5 V 0.6 A MAX)
AC IN
High
Low
High
Low
Delantero derecho
Delantero izquierdo
Altavoz compatible
con biamplificador
Subwoofer
Altavoz compatible
con biamplificador
Center
Sonido envolvente
derecho
Sonido envolvente
izquierdo
PRECAUCIÓN
! La mayoría de los altavoces que tienen terminales High y Low tienen dos placas metálicas que
conectan los terminales High a los terminales Low. Deberá retirar estas placas al biamplificar
los altavoces, o de lo contrario podrá dañar gravemente el amplificador. Para más información,
consulte el manual del altavoz.
! Si los altavoces tienen una red divisora de frecuencias extraíble, asegúrese de no retirarla al hacer
la biamplificación. De lo contrario, los altavoces podrían dañarse.