Schreiber Chillers 15MEDAC_GEN2 User Manual
Page 27

H
G
F
E
D
C
B
A
8
7
6
5
4
3
2
1
H
G
F
E
D
C
B
A
8
7
6
5
4
3
2
1
TI
TL
E
P
H
IL
IP
S
IN
TE
R
C
O
N
N
E
C
T
R
EV
IS
E
D
4/
15
/2
00
3
FI
LE
N
AM
E
P
H
IL
IP
S
P
IP
IN
G
IN
TE
R
C
O
N
N
E
C
T.
V
S
D
D
E
SC
R
IP
TI
O
N
80
40
/4
04
0
A
C
/R
C
IN
TE
R
C
O
N
N
E
C
TI
O
N
D
IA
G
R
A
M
D
R
AW
N
B
Y
JEFF
JOHN
SON
D
AT
E
12
/9
/2
00
2
R
E
V
IS
IO
N
S
R
E
V
D
E
S
C
R
IP
TI
O
N
D
AT
E
A
P
P
R
O
V
E
D
C
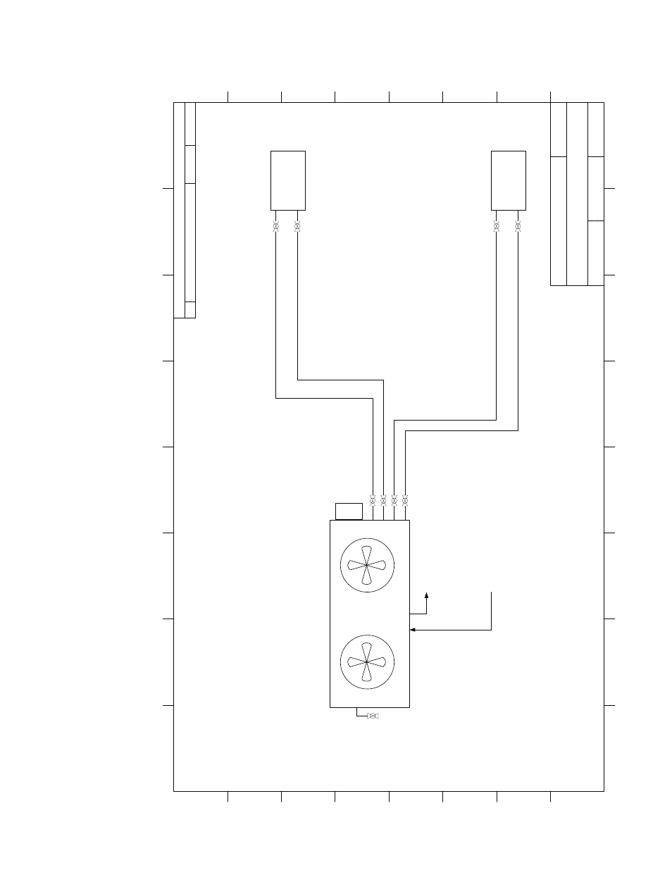
ry
o
C
om
pr
es
so
r
G
C
H
E
R
es
er
vo
ir
D
ra
in
1⁄2
" S
hu
to
ff
va
lv
e
pr
ov
id
ed
in
si
de
c
hi
lle
r
St
ra
in
er
B
lo
w
do
w
n
va
lv
e
N
O
TE
S:
P
re
ss
ur
iz
ed
w
at
er
li
ne
w
ith
s
hu
to
ff
va
lv
e
m
us
t b
e
pr
ov
id
ed
a
t t
he
c
hi
lle
r s
ite
. T
he
c
hi
lle
d
w
at
er
re
se
rv
oi
r i
s
fil
le
d
di
re
ct
ly
th
ro
ug
h
th
e
fil
l p
or
t,
an
d
no
t t
hr
ou
gh
th
e
su
pp
ly
o
r r
et
ur
n
lin
es
. A
p
re
ss
ur
iz
ed
w
at
er
s
up
pl
y
w
ith
a
sh
ut
of
f v
al
ve
a
nd
h
os
e
ar
e
al
l t
ha
t i
s
re
qu
ire
d.
Ta
nk
F
ill
See also other documents in the category Schreiber Chillers Equipment:
- Copy of 1000AC MRI (42 pages)
- 1000AC (30 pages)
- 1000ACsf (30 pages)
- 1001ACsf (26 pages)
- 1250ACsf (30 pages)
- 1055 Clearances (2 pages)
- 100ACsf (32 pages)
- 1001acsfod (31 pages)
- 15 Med Main Manual (19 pages)
- 1500ACsf (31 pages)
- 150AC laser (34 pages)
- 150ACsf (30 pages)
- 150ACsfaw (32 pages)
- 15MEDAC email (64 pages)
- 15medWC (56 pages)
- 2500modify (19 pages)
- 2500ACsf (31 pages)
- 200ACsf (31 pages)
- 2000ACsfmodify (20 pages)
- 2203AC - 3-Stage Chiller (40 pages)
- 2000ACsf (31 pages)
- 30AC (18 pages)
- 400ACsf trane (35 pages)
- 400ACsf (32 pages)
- 500ACsf (33 pages)
- 50ACsf (32 pages)
- 750AC MRI (43 pages)
- 750ACsf (31 pages)
- 400AC MRI (40 pages)
- 300ACsf (31 pages)
- 3000ACsf (32 pages)
- 3000AC (33 pages)
- 300AC-MRI (46 pages)
- Modular Chillers (56 pages)
- Micro Photonix 1001ac (35 pages)
- MICRO MAX CHILLERS (21 pages)
- MC75WC (13 pages)
- MC75AC (20 pages)
- Katema 1001AC (45 pages)
- Hypertherm Part No 039104 (30 pages)
- Excellon (26 pages)
- Excellon MM30AC (20 pages)
- Excellon 150EX (34 pages)
- Excellon 150AC (33 pages)
