None – Schreiber Chillers 15MEDAC_GEN2 User Manual
Page 24

Schreiber
Engineering
12111 EAST PARK STREET
CERRITOS, CA 90703
TITLE
MATERIAL
FINISH
SCALE:
DRAWING NO.
DRAWN BY:
DATE:
REV
DO NOT SCALE DRAWING
A
SHT1 SHT2
B B
UNLESS OTHERWISE SPECIFIED
DIMENSIONS ARE IN INCHES
TOLERANCE ARE:
FRACTION DECIMALS ANGLES
+ .XX +.03
+.5
.XXX + .015
SHT OF
SIZE
B
REV. DESCRIPTIONS DATE BY
A DOVER COMPANY
04/21/05
NONE
NONE
RICHARD RODRIGUEZ
VFD ENCLOSURE
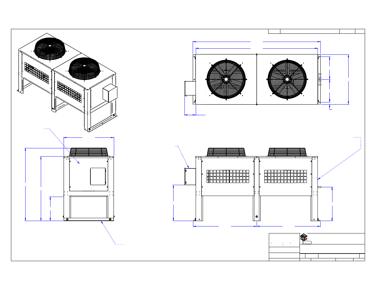
1ST FAN MOTOR
ACCESS PANEL
88.302
92.336
8.068
1.500
2X
16.500
2X
16.500
2X
36.000
2X
17.573
46.744
52.824
36.340
46.074
46.074
24.488
26.050
2ND FAN MOTOR
CONDENSER COIL
ACCESS PANEL
2" X 2" X 36" ANGLE IRON
15MED CONDENSING
CABINET ASSEMBLY
15RCU-800
1 2
See also other documents in the category Schreiber Chillers Equipment:
- Copy of 1000AC MRI (42 pages)
- 1000AC (30 pages)
- 1000ACsf (30 pages)
- 1001ACsf (26 pages)
- 1250ACsf (30 pages)
- 1055 Clearances (2 pages)
- 100ACsf (32 pages)
- 1001acsfod (31 pages)
- 15 Med Main Manual (19 pages)
- 1500ACsf (31 pages)
- 150AC laser (34 pages)
- 150ACsf (30 pages)
- 150ACsfaw (32 pages)
- 15MEDAC email (64 pages)
- 15medWC (56 pages)
- 2500modify (19 pages)
- 2500ACsf (31 pages)
- 200ACsf (31 pages)
- 2000ACsfmodify (20 pages)
- 2203AC - 3-Stage Chiller (40 pages)
- 2000ACsf (31 pages)
- 30AC (18 pages)
- 400ACsf trane (35 pages)
- 400ACsf (32 pages)
- 500ACsf (33 pages)
- 50ACsf (32 pages)
- 750AC MRI (43 pages)
- 750ACsf (31 pages)
- 400AC MRI (40 pages)
- 300ACsf (31 pages)
- 3000ACsf (32 pages)
- 3000AC (33 pages)
- 300AC-MRI (46 pages)
- Modular Chillers (56 pages)
- Micro Photonix 1001ac (35 pages)
- MICRO MAX CHILLERS (21 pages)
- MC75WC (13 pages)
- MC75AC (20 pages)
- Katema 1001AC (45 pages)
- Hypertherm Part No 039104 (30 pages)
- Excellon (26 pages)
- Excellon MM30AC (20 pages)
- Excellon 150EX (34 pages)
- Excellon 150AC (33 pages)
