Bottom top right left, Enclosure dimensions – Altronix ALTV615DC8UL3 Installation Instructions User Manual
Page 2

Altronix is not responsible for any typographical errors.
140 58th Street, Brooklyn, New York 11220 USA, 718-567-8181, fax: 718-567-9056
web site: www.altronix.com, e-mail: [email protected], Lifetime Warranty, Made in U.S.A.
IIALTV615DC8UL
D30J
WARNING: To reduce the risk of fire or electric shock, do not expose the unit to rain or moisture.
This installation should be made by qualified service personnel and should conform to NEC and all
local codes.
Terminal Identification:
AL400ULB - Power Supply Board
PD8 - Distribution Module
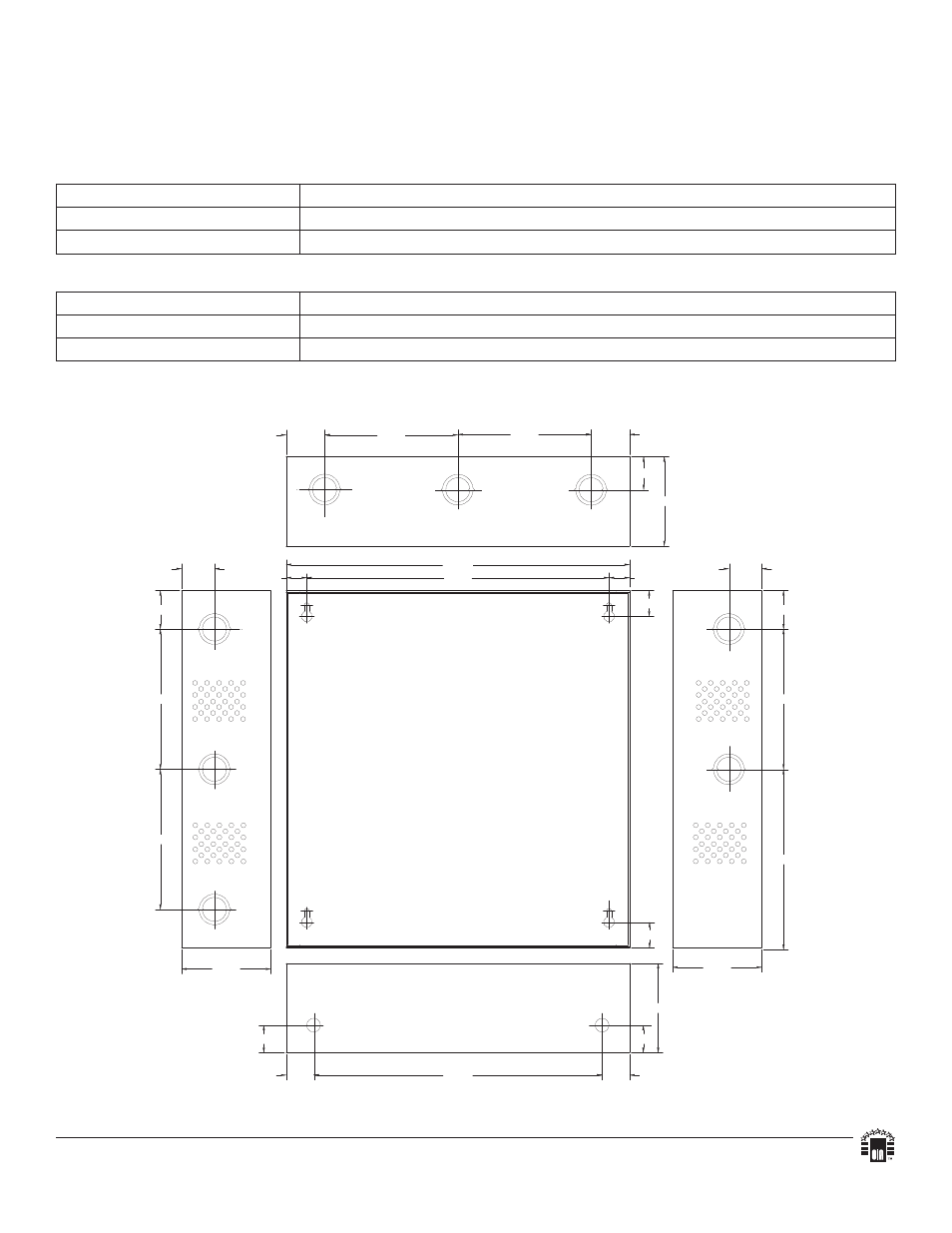
Enclosure Dimensions:
13.5”H x 13”W x 3.25”D
MEMBER
Terminal Legend
Function/Description
AC/AC
Low voltage AC input (24VAC 100VA) Altronix part #T24130.
+ DC ---
6VDC-15VDC @ 4 amp total continuous output.
Terminal Legend
Function/Description
1P - 8P
Positive DC output, Class 2, power limited.
1N - 8N
Negative DC output, Class 2, power limited.
5.10"
6.5625"
3.25"
3.25"
5.10"
5.10"
3.25"
1.00"
10.50"
1.00"
1.00"
1.00"
1.40"
1.20"
1.40"
1.20"
0.75"
0.75"
11.00"
12.50"
3.25"
0.9375"
0.9375"
1.40"
4.85"
4.85"
1.40"
1.20"
Bottom
Top
Right
Left
- NetWay3012 Installation Instructions (2 pages)
- HubWay 16Di Data Sheet (2 pages)
- Maximal77 Installation Instructions (20 pages)
- HubWay Dvi Data Sheet (1 page)
- HubWay Av2 Data Sheet (1 page)
- PD4CB Installation Instructions (1 page)
- ACM4CB Data Sheet (2 pages)
- VertiLine63D Data Sheet (2 pages)
- eBridge16CR Installation Instructions (8 pages)
- LPS3WP12 Data Sheet (2 pages)
- VertiLine246D Data Sheet (2 pages)
- T24130D Data Sheet (1 page)
- eBridge1PCRTX Data Sheet (2 pages)
- RB5 Installation Instructions (1 page)
- Tempo2 Data Sheet (1 page)
- BC600G Data Sheet (1 page)
- eBridge1CRT Data Sheet (2 pages)
- AL400ULB Data Sheet (1 page)
- PT2724 Installation Instructions (8 pages)
- OLS180 Installation Instructions (2 pages)
- HubWay 8CD Data Sheet (2 pages)
- AL175ULB Data Sheet (1 page)
- StrikeIt2 Installation Instructions (8 pages)
- LPD Data Sheet (1 page)
- eBridge4SK Installation Instructions (8 pages)
- LPS3AC Installation Instructions (2 pages)
- T2428100 Data Sheet (1 page)
- TP1650 Data Sheet (1 page)
- T2885D Data Sheet (1 page)
- T2428175 Installation Instructions (1 page)
- T1656 Installation Instructions (1 page)
- SMP3 Data Sheet (1 page)
- RBR1224 Data Sheet (1 page)
- HubWay LD16D Data Sheet (2 pages)
- eFlow102NX16D Installation Instructions (16 pages)
- T24175C Data Sheet (1 page)
- Maximal5D Data Sheet (2 pages)
- Maximal7 Installation Instructions (16 pages)
- HubWay 8CDS Data Sheet (2 pages)
- eFlow4NX8D Installation Instructions (16 pages)
- MOM5C Data Sheet (1 page)
- eBridge16PCRX Installation Instructions (8 pages)
- HubWay EX16SP Data Sheet (2 pages)
- T24130C Installation Instructions (1 page)
- Maximal5 Data Sheet (2 pages)