Search
Directory
Brands
Quincy Compressor manuals
Vacuums
50093-103
Manual
)qsvi 100 (water-cooled) – Quincy Compressor 50093-103 User Manual
Page 31
Text mode
Original mode
25
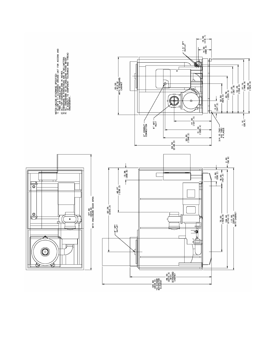
QSVI 100 WATER-COOLED DIMENSIONAL DRAWING
Pages:
1
…
29
30
31
32
33
…
76
wrong Brand
wrong Model
non readable