Search
Directory
Brands
Quincy Compressor manuals
Vacuums
50093-103
Manual
) qsvi 100 (air-cooled) – Quincy Compressor 50093-103 User Manual
Page 30
Text mode
Original mode
24
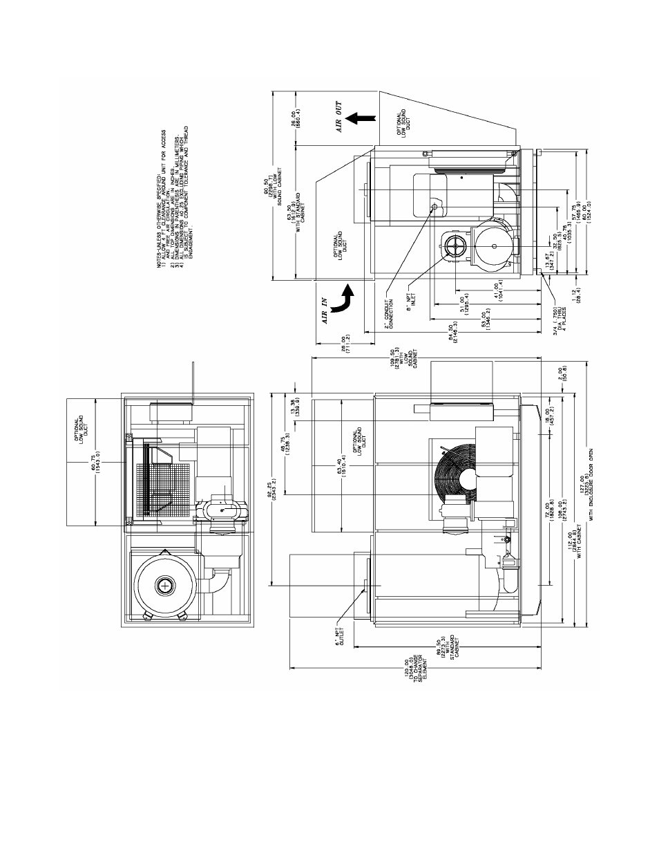
QSVI 100 AIR-COOLED DIMENSIONAL DRAWING
Pages:
1
…
28
29
30
31
32
…
76
wrong Brand
wrong Model
non readable