Search
Directory
Brands
Quincy Compressor manuals
Vacuums
50093-103
Manual
) qsvi 75 (water-cooled) – Quincy Compressor 50093-103 User Manual
Page 29
Text mode
Original mode
23
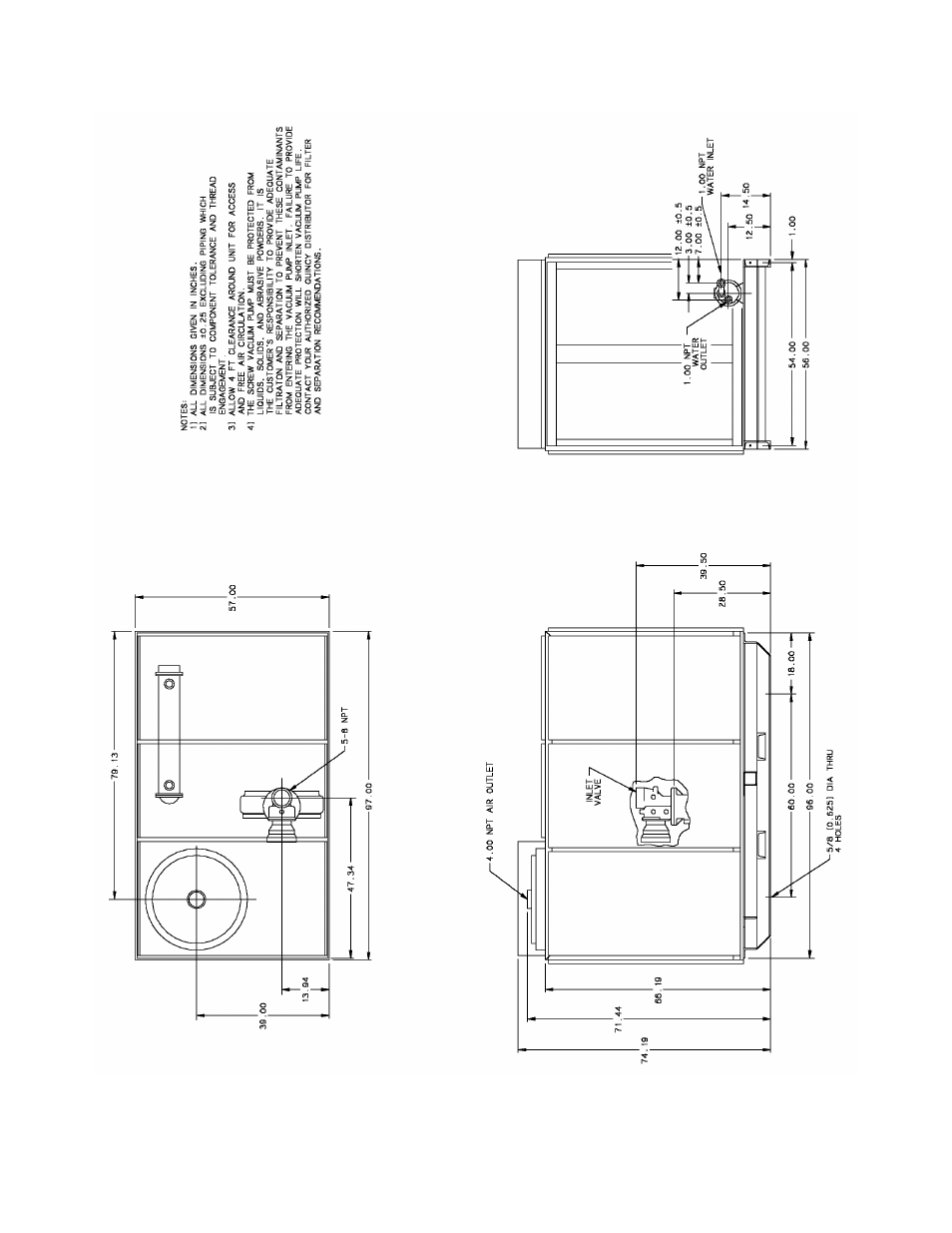
QSVI 75 WATER-COOLED DIMENSIONAL DRAWING
Pages:
1
…
27
28
29
30
31
…
76
wrong Brand
wrong Model
non readable