0 opal option cards, 1 soft stop, Opal option cards – SAF OPAL SS6 User Manual
Page 27: Soft stop

OPAL SS6 Reduced Voltage Starters
Page 20
5.0 OPAL OPTION CARDS
Refer to Section 6 for typical connections of any of the options listed in this section.
5.1 SOFT STOP
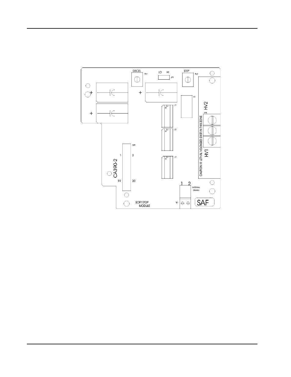
CA390 - SOFT STOP CARD
This option has been designed to provide a controlled stop, to eliminate the water hammering effect
associated with fluid pumping applications.
The Soft Stop card works in the opposite fashion as the OPAL starting. When stop is commanded,
the OPAL output voltage drops to a level set by STEP, RV2, and begins to ramp down following a
rate set by the potentiometer DECEL, RV1, The OPAL will remain on until the motor terminal
voltage has decreased to a set voltage level, at which time the starter switches off. The maximum
ramp time is limited to a maximum 15-20 seconds. This is the time that the relay in the OPAL
controller card, CA392, is maintained energized.
The majority of AC induction motors experience a region of instability when phased back or voltage
is reduced. The STEP potentiometer should be adjusted to a level, which is just below this point.
Fully counter-clockwise provides little decrease in voltage step when stop is commanded.
Clockwise rotation of RV1 slows the ramp down from this point.
The voltage level jumper, J1, set at LO ceases starter operation at 15% voltage while at H1, the
OPAL stops at 20% line voltage.
Terminals 1 and 2 on this option card are provided to wire an external selector switch to enable or
disable the soft stop mode. When terminals 1 and 2 of TB1 are shorted, the OPAL will coast to a
rest when stop is commanded.