Search
Directory
Brands
Cooper Bussmann manuals
Satellite
CT02MAN
Manual
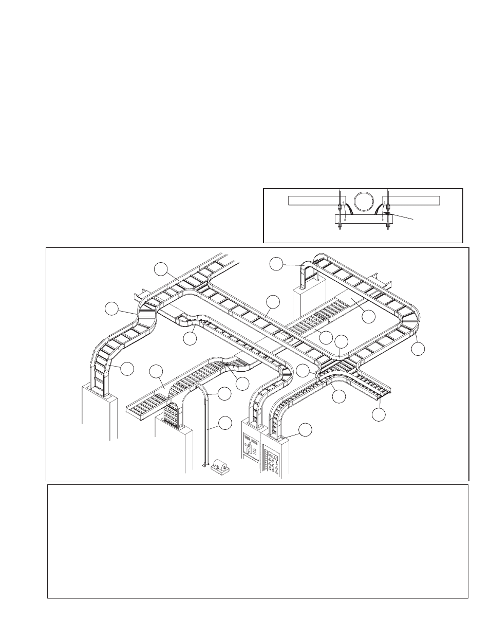
Typical cable tray layout, Installation. (a) complete system, Nomenclature – Cooper Bussmann CT02MAN User Manual
Page 23
Text mode
Original mode
Typical cable tray layout, Installation. (a) complete system, Nomenclature | Cooper Bussmann CT02MAN User Manual | Page 23 / 60
Pages:
1
…
21
22
23
24
25
…
60
wrong Brand
wrong Model
non readable
See also other documents in the category Cooper Bussmann Satellite:
BU-905U-L-T
(8 pages)