As-i safety monitor for 2 as-i networks – EUCHNER SMOX-MO-2D-C16 User Manual
Page 3

Translation of the original operating instructions
SMOX-MO-2D-C16
Connecting instruction (abridged version)
AS-i Safety Monitor for 2 AS-i networks
Notes on using these connecting and operating instructions
This connecting and operating instruction contains information regarding the proper
and effective use of the AS-i monitor.
See the manuasl „AS-i Safety Monitor for 2 AS-i networks“ and „ASIMON configurati-
on software“ for detailed information.
Safety precautions and warnings are designated by the symbol
EUCHNER GmbH + Co. KG is not liable for damage resulting from improper use
of its equipment. Familiarity with these instructions constitutes part of the
knowledge required for proper use.
© Reprint and reproduction, in whole or in part, only with the explicit permission of:
EUCHNER GmbH + Co. KG
Kohlhammerstraße 16
*
D-70771 Leinfelden-Echterdingen
Tel. +49(0)711/7597-0
Fax +49(0)711/753316
Internet: http://www.euchner.de
This short description of the connection and operating instruction is a part of the
scope of delivery.
Application
The AS-i Safety Monitor in Stainless Steel is an emergency stop control device. It mo-
nitors the assigned safety-related AS-i sensors.
The safety unit works with two equal AS-i circuits and creates 16 stand-alone signals.
16 Safety at Work outputs can be controlled by it and up to two safe couple slaves can
be created.
The AS-i safety monitor is approved for safety applications up to Category 4/SIL 3.
Technical data
Safety characteristics
1).
Probability of a dangerous loss per hour.
Dimensional drawing
Assembling
Disassembling
The AS-i Safety Monitor is mounted on 35 mm standard rails acc. to DIN EN 50 022.
For assembling, position the device on the upper edge of the standard rail and snap
it onto the bottom edge then.
Connection
Maintenance
The proper function of the AS-i safety monitor within the system to be secured, i.e. the
safe shutdown following the triggering of an assigned safe sensor or switch, is to be
checked at least annually by the safety officer.
Fig. 1: Connection overview
Fig. 2: Connection overview safety monitor
Specified normal operation of the safety monitor:
The safety monitor has been designed as a disconnecting protective de-
vice to safeguard danger areas on power-driven working materials. The
safe outputs put a machine in the safe state.
For connection and commissioning of the AS-i safety monitor the know-
ledge is assumend of the connecting und operating instructions as well
as operating instructions of ASIMON configuration and diagnostic soft-
ware.
Person protective function:
Safety monitor fulfills a person protective function. Inappropriate instal-
lation puts the function in risk! The manufacturer of the machine/plant at
that one the safety related devices is used is responsible for the correct
and safe total function of all single safety components! Depending on
the choice of safety components to be used the safety system as a who-
le may also be assigned to a lower safety category.
Id
.-No.
: 1033
34 -
Is
su
e
dat
e: 2011
-8-30
Su
bject
to
change
wit
hou
t pri
or not
ice
02102800000000001
SMOX-MO-2D-C16
103303
AS-i Safety Monitor
Euchner GmbH+Co.KG YoC: 2011
Kohlhammerstr. 16 70771 Leinfelden
AC-15, DC-13 3 A 30 V
Version NO.:
13914
Safety Version: V4.2
FA.0001
Safety monitor
advanced monitor
Release circuits
4
Inputs:
4 x EDM/Start
EDM: contactor monitoring inputs
Start: start inputs
Outputs:
4 x output switching elements
relay outputs (output circuits 1 and 2)
semiconductor outputs (output circuits 3 and 4)
Display
LCD
indication of slave addresses and error messages
LED power
AS-i voltage OK
LED fault
LED on: communication error on AS-i network
LED flashing: at least 1 OSSD in state „red flashing“
LED ready
LED on:
start-up/restart-disable active
LED flashing
: external test necessary
LEDs U AS-i 1 / U AS-i 2
AS-i 1/AS-i 2 sufficiently voltage supplied
LED AUX
auxiliary power ON
4 x LEDs EDM/Start
state of inputs
LED off: open; LED on: closed
4 x LEDs output circuit
state of output switching element
LED off: open; LED on: closed
Electrical data
Operating current
max. 200 mA out of AS-i circuit 1 (approx. 45 mA -
200 mA),
max. 200 mA out of AS-i circuit 2
(approx. 45 mA - 200 mA); in sum max. 245 mA
Operating voltage
24 V DC (26,5 ... 31,6 V out of AS-i)
Voltage of insulation
500 V
Housing
stainless steel
Ambient operating temperature 0°C … +55°C
Storage temperature
-25°C … +85°C
Dimensions (L / B / H in mm)
120 / 85 / 96
Protection category
IEC 60 529
IP20
Tolerable loading referring to
impacts and vibrations
according to EN 61 131-2
Weight
800 g
Characteristics
Value
Standard
Safety category
4
EN 954-1
EN 13 849-1:2008
Performance Level (PL)
e
EN 13 849-1:2008
Safety Integrity Level (SIL)
3
EN 61 508
Service life (TM) [year]
20
EN 13 849-1:2008
Maximal power-on time (month)
12
EN 61 508
PFD
9,25
.
10
-6
IEC 61 508 EN 62 061
PFH
D
1
5,36
.
10
-9
Max. reaction time [ms]
40
EN 61 508
In addition to the reaction time in the monitor, eventually reaction times
of other daisy-chained AS-i components have to be added too. See the
respective technical data for details.
The AS-i and/or the 24 V supply must be made from a PELV power sup-
ply. Its maximal output voltage may not exceed 42 V even in the case of
an error!
Ensure appropiate installation:
Electrical installation is to be performed by trained expert personnel. Du-
ring installation care must be taken that supply and signal leads and also
the AS-i bus cable are laid separately from power cables. In the switch-
gear cabinet it must be ensured that appropriate spark-quenching
equipment is used with contactors. Where drive motors and brakes are
used, attention must be paid to the installation instructions in the corre-
sponding operating instructions. Please note that the maximum line
length of the AS-i bus cable is 100 m. Cables above that length require
the use of a suitable circuit extension.
It is essential to adhere to the prescribed fusing; this is the only way of
guaranteeing safe disconnection in the case of a fault.
This is to be performed by activating each safe AS-i slave at least once
per year and visually inspecting the switching behaviour of the output
circuits of the AS-i safety monitor.
The maximum switch-on time and total operating time depends on the
PFD value selected for the overall failure probability.
When the maximum switch-on time has been reached (three, six or twel-
ve months), the safety system must be checked to ensure that it is
functioning correctly by prompting the shutdown function.
When the total operating time has been reached (20 years), the device
must be checked at the manufacturer's factory to ensure that it is
functioning correctly.
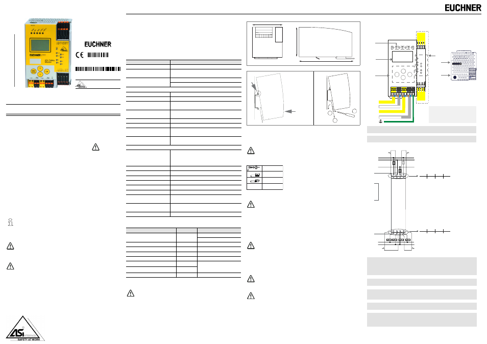
120
96
85
[1]
[2]
1
2
3
0,8 Nm
7 LB.IN
5 ... 6 mm / PZ2
10
10
AWG
2 x 24 ...12
2 x (0,5 ... 1,5) mm
2
2 x (0,5 ... 1,5) mm
2
[2]
[1]
[1] - Chip card
[2] - RS 232 connection
[3] - LED status indicator
[4] - LCD display
[5] - Buttons for manual operation
(top view)
+ASI 1– | +ASI 2–
Connection AS-i 1 circuit | Connection AS-i 2 circuit
ASI 1 +PWR– (max. 8 A) | ASI 2 +PWR– (max. 8 A)
Supply voltage AS-i circuit 1 | Supply voltage AS-i circuit 2
+
-
+
-
+
-
+ASI
1–
+
+ASI
2–
ASI
1 +PWR– (max. 8A)
ASI 2 +PWR– (max. 8A)
+
-
[3]
[4]
[5]
[3]
K 3
24V_1
2.13
+
24 V
2.Y1
0 V
+
1.13
2.Y2
1.Y2
2.14
+
4.14
+
1.14
1.Y1
3.14
0V_2
24V_2
K 4
K2
K1
0V_1
0V_2
K2
K1 K3
K4
1.Y1 (EDM 1/Start 1), 2.Y1 (EDM 2/Start 2), 1.Y2 (EDM 3/Start 3),
2.Y2 (EDM 4/Start 4)
EDM- and start-inputs may not be connected with other potentials, but may only be con-
nected directly or over potential-free switches with + (for EDM/START).
Switching current static 4 mA at 24 V, dynamic 30 mA at 24 V (T=100 µs).
1.14, 2.14; 1.13, 2.13
Potential-free relay switches. Safety relay with a switch-set for feedback.
Max. contact load: 3 A AC-15 at 30 V, 3 A DC-13 at 30 V
+ (for EDM/Start)
Current supply output, supplied out of AS-i. It must not be connected with other poten-
zials, but it may be connected directly or via potential-free switches with the one of the
EDM- or start inputs. Voltage range 30 ... 15 V
DC
.
3.14, 4.14
Semiconductor outputs. Max. contact load: 0,5 A DC-13 at 30 V
0 V, 24 V
Supply for semiconductor outputs out of auxiliary 24 V DC