Parts identification – MAHLE RTI BFX-1 User Manual
Page 12

IMPORTANT:
Test drive vehicle after service to verify proper
brake system performance.
Page 11
ON
ON
OFF
OFF
OFF
ON
PRESSURE
EMPTY
FULL
USED TANK
NEW TANK
ON
OFF
ON
ON
OFF
ON
OFF
OFF
VACUUM BLEEDER
BFX 1
EMPTY
MASTER
CYLINDER
FILL
MASTER
CYLINDER
EXCHANGE
BRAKE
FLUID
X 4
1
2
5 (x4)
3
4
6
7
8
9
11
12
13
14
10
16
19
20
15
17
18 (x4)
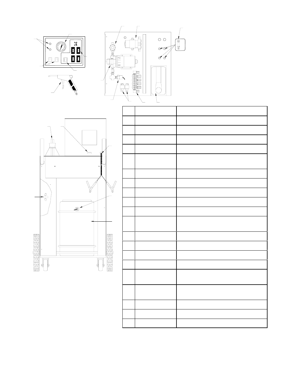
Parts Identification
Part No.
Description
1
025-80358-00
Indicator Light Red
12VDC
2
325-80016-00
Pressure Gauge Assy (BFX-1)
3
024-80076-00
Switch Rocker SPDT (On-On)
4
024-80075-00
Switch Rocker DPDT (On-On)
5
024-80066-00
Rocker Switch SPDT 
(On-On)Visi-Red
6
325-80002-00
Wand/Gun Assy (BFX)
7
026-80358-00
Sight Glass 1/4 FPT (Nylon)
8
325-80030-00
Vacuum Pump w/terminals Assy
9
325-80029-00
Supply Pump w/terminals Assy
10
023-80344-00
Adapter Brake Nipple x 3/16 Barb
11
325-80031-00
Press Switch 9-12 psi SPST
EPDM 1/4 MPT w/Terminals
12
024-80091-00
Relay 40 Amp SPDT 12VDC
13
025-80361-00
Manifold 4 Valve 12VDC 1/4FPT
14
325-80005-00
New Tank Assy (BFX-1)
15
024-80099-00
Float Switch Assy (New Tank)
16
360-81763-00
025-80342-10
Fuse Holder ATO Panel Mount
Fuse 10 Amp ATO Fast Blow
17
320-80005-00
Cord Power 14/2 SPT3 Battery
Clamps 12FT
18
026-80372-00
Inline Filter 3/16 Barb 150 Micron
19
325-80022-00
Float Switch Assy (Used Tank)
20
325-80004-00
Used Tank Assy (BFX-1)
