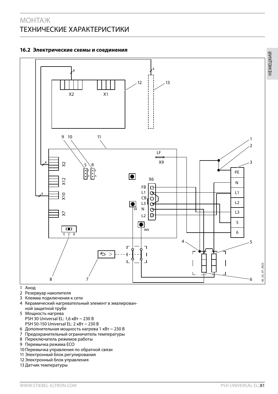
Монтаж технические характеристики, 2 электрические схемы и соединения – STIEBEL ELTRON PSH Universal EL с 05.12.2011 User Manual
Page 81
See also other documents in the category STIEBEL ELTRON Water boiler:
- SHZ 150 LCD (44 pages)
- SHZ 30 LCD (44 pages)
- DHE 18 SLI 25 A (176 pages)
- SN 5 SL (34 pages)
- sn 15 sli comfort (34 pages)
- DHB-E 13 SL (168 pages)
- SHW ... S 01.07.2003 - 23.01.2005 (32 pages)
- SNU 10 SLi с 23.04.2007 (30 pages)
- DHF 12 - 24 C 01.10.2006 - 31.03.2007 (52 pages)
- SH A с 01.03.2009 (72 pages)
- SHW ... S 24.01.2005 - 31.11.2007 (32 pages)
- SH A 02.07.2002 - 28.02.2009 (24 pages)
- PSH EL с 05.12.2011 (100 pages)
- SHD ... S 06.06.2006 - 12.04.2009 (20 pages)
- HDB-E Si с 01.02.2013 (80 pages)
- HTE electronic 5 с 11.05.2009 (80 pages)
- DHC-E 8-10-12 01.12.2011 - 13.02.2011 (40 pages)
- DHC-E 8-10-12 с 14.02.2011 (40 pages)
- HDB-E Si 01.11.2012 - 31.01.2013 (72 pages)
- SH S electronic с 26.04.2004 (36 pages)
- SNU 5 SLi 01.05.2007 - 28.10.2007 (34 pages)
- SNU 5 SLi с 01.09.2007 (34 pages)
- SNU 5 SLi с 29.10.2007 (34 pages)
- DHF 12 - 24 C с 01.04.2007 (103 pages)
- HTE electronic 5 05.02.2007 - 10.10.2009 (32 pages)
- SB AC с 08.06.2009 (56 pages)
- HTT turbotronic 5 с 01.03.2009 (88 pages)
- PSH TM с 01.09.2008 (24 pages)
- SHW 200-400 ACE с 06.05.2013 (48 pages)
- SN ... SLi с 01.11.2007 (34 pages)
- SHW ... S с 06.05.2013 (84 pages)
- DHF .. C 01.02.2004 - 30.09.2006 (52 pages)
- SHD ... S с 13.04.2009 (60 pages)
- SHW ... S 01.11.2007 - 05.05.2013 (32 pages)
- DHF .. C 22.04.2002 - 31.01.2004 (52 pages)
- MINI 2-1 (32 pages)
- DHC 3-1 (32 pages)
- DHC-E 8/10 (32 pages)
- TEMPRA 36 PLUS (32 pages)
- SHC 2.5 (36 pages)
- SHC 2.5 (6 pages)
- SB 150 (9 pages)
- SBB 300 (15 pages)
- ASPHALT ROOF FLASHING KIT - 560105 (2 pages)
