Directory
Brands
PVI Industries manuals
Water boiler
PV500-47C
Manual

PVI Industries PV500-47C User Manual

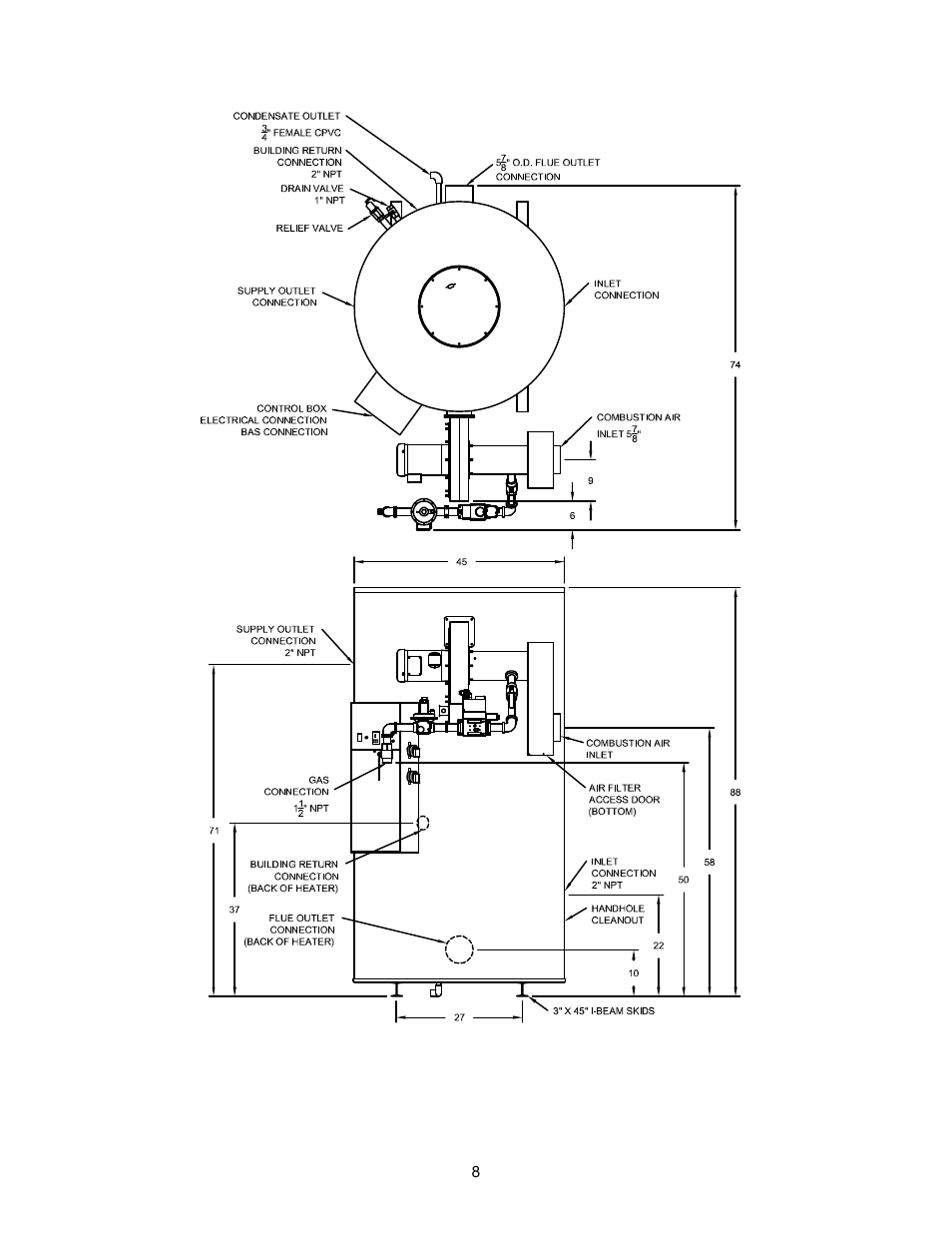
Page 8

  • Text mode
  • Original mode
PVI Industries PV500-47C User Manual | Page 8 / 40 PVI Industries PV500-47C User Manual | Page 8 / 40
Pages: 1 … 6 7 8 9 10 … 40
  • wrong Brand
  • wrong Model
  • non readable
See also other documents in the category PVI Industries Water boiler:
  • 72 N 125A-MXG (1 page)
  • 2500P600A-TPGO (1 page)
  • 20 P 125A-MXS (1 page)
  • 3500N400A-TPO (1 page)
  • PV 6150b (2 pages)
  • Water Heater (1 page)
  • PV500-45C (42 pages)
  • 1000 P 225A-TPL (1 page)
  • 45P175A-E (1 page)
  • 45N300A-E (1 page)
  • TurboPower Tank Series (1 page)
  • PV 500-6 (14 pages)
  • 750 P 125A-TPGO (1 page)
  • PV500-25 (16 pages)
  • 3000N600A-TPO (1 page)
  • Durawatt CL (1 page)
  • PV 6315 (2 pages)
  • 1500PHE125A-TPGO (1 page)
  • 1500 P 250A-TPL (1 page)
  • QUICKDRAW PV500-26 (16 pages)
  • TurboPower 100N125A-TPL (1 page)
  • PV 6813 (2 pages)
  • NickelShield Tank Series (1 page)
  • 500 N 400A-TPL (1 page)
  • Storage and Semi-instantaneous Steam Heaters PV500-25 (11 pages)
  • PV 6127b (2 pages)
  • 250N600A-TPO (1 page)
  • 20 N 119A-MXS (1 page)
  • PV 6112b (2 pages)
  • 500 N 750A-TPL (1 page)
  • CSX Single-Exchanger (2 pages)
  • PV 6619 9 (3 pages)
  • PV 6323 (2 pages)
  • 1000 N 225A-TPO (1 page)
  • NickelShield PV 6382 07 (1 page)
  • PV 6685 2/05 1 (2 pages)
  • 1000 N 600A-TPL (1 page)
  • Durawatt Polymer-Plated Storage Tank (1 page)
  • 54 P 90A-MXG (1 page)
  • PV 6126b (2 pages)
  • 1000P1250A-TPGO (1 page)
  • 150 (44 pages)
  • Polyshield 119 Gallon Tank Series (1 page)
  • PV 6319 (2 pages)
Home Brands Popular manuals Recently added
Manuals Directory

© 2012–2025, azmanual.top
All rights reserved.