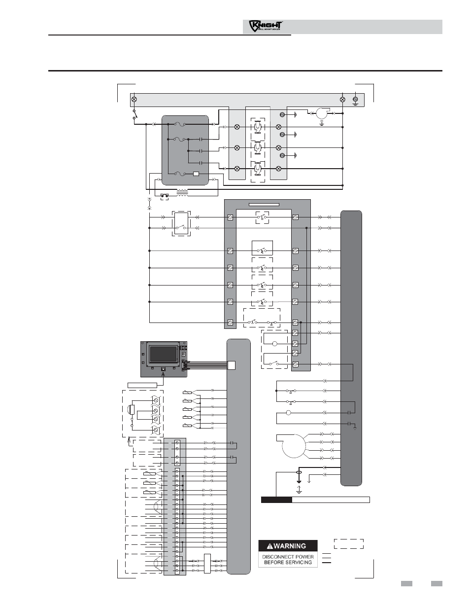
Diagrams, Installation & operation manual, Figure 13-1 ladder diagram – Lochinvar KNIGHT 51 User Manual
Page 75: Caution high voltage spark lead

Installation & Operation Manual
75
13
Diagrams
BOX DEPICTS
OPTIONAL ITEMS
LADDER DIAGRAM
LBL20148 REV B
120 VAC
24 VAC
120VAC
TERMINAL STRIP
120V SUPPLY "L"
ON / OFF
SWITCH
X1-6
F2
NEUTRAL
FLOW
CN5-6
CN5-12
CN5-11
X4-2
X4-10
X4-11
INTEGRATED
CONTROL
LOW GAS
PRESSURE
SWITCH
HIGH GAS
PRESSURE
SWITCH
LOUVER
RELAY COIL
24VAC
LOUVER
PROVING SWITCH
CN5-4
X4-4
X2-1
GAS VALVE
GAS VALVE
RELAY
X5-7
X5-16
X5-8
X5-15
1
2
4
5
3.15A
F1
5A
TR2
X1-7
FLAME ROD
SPARK
ROD
INTEGRATED CONTROL
GROUND
JUNCTION BOX
CAUTION
HIGH VOLTAGE SPARK LEAD
BLOWER
CONNECTION
BOARD
INLET
SENSOR
OPERATING
SENSOR
FLUE
SENSOR
INTEGRATED
CONTROL
RUN-TIME
CONTACTS
RIBBON CABLE
X7
SYSTEM
SENSOR
TANK
SENSOR
OUTDOOR
SENSOR
0-10V
+
-
CASCADE
A
B
SHIELD
SHIELD
13
6
2
1
SIL
E
N
C
IN
G
SW
ITC
H
ALA
R
M
BEL
L
S6
S4
S5
BMS
CN6
X6
CN6
X6
CN6
X6
CN3-9
X4-9
CN3-6
X4-6
CN6
X6
CN6
X6
CN5-2
X4-6
CN5-9
X4-13
CN5-1
X4-7
CN5-8
X4-14
CN6
X6
CN6
X6
CN6
X6
HIGH LIMIT
SENSOR
FLUE
SENSOR
X5-4
X5-12
X5-5
X5-13
X5-14
X5-6
0-10V
+
-
SYS PUMP
IN
0-10V
+
-
BLR PUMP
OUT
0-10V
+
-
RATE
OUT
IN
MODBUS
A
B
SHIELD
SHIELD
CN6
X6
CN6
X6
CN6
X6
CN6
X6
CN6
X6
CN8-1
X6-1
CN8-2
X6-2
CN8-3
X6-3
X4-1
X9-2
X4-2
X9-1
X4-3
X9-3
PC INTERFACE
S2
S1a
S1b
S3a
S3b
21
22
26
27
23
24
30
31
32
33
35
36
37
38
39
40
41
42
43
44
3
4
1
2
ALARM
CONTACTS
M
O
D
B
U
S
29
34
10
16
14
9
5
6
7
8
X2-2
NOTES:
1. Where possible, switches are shown without utilities (gas, water or
electricity) connected to the unit. As such, actual switch states may
vary from those shown on diagrams depending upon whether utilities
are connected or a fault condition is present.
2. See wiring diagram for additional notes.
CN5-3
X4-5
X1-1
1
2
BLOWER
SYSTEM PUMP
RELAY
DHW PUMP
RELAY
BOILER PUMP
RELAY
24V DC
SUPPLY
F3
.8A
X5-1
X5-9
3.5A
KB 801 ONLY
3
ROOM
THERMOSTAT 3
LWCO
CONNECTION BOARD
TANK
THERMOSTAT
13
15
CN5-13
X4-9
18
ROOM
THERMOSTAT 2
17
CN5-7
X4-1
20
ROOM
THERMOSTAT 1
19
11
12
SWITCH
CN7-1
CN7-3
CN7-2
CN7-4
CN5-10
X4-12
CN5-14
X4-8
CN5-5
X4-3
CONNECTION BOARD
X1-4
X1-3
X1-2
BOILER
PUMP "L"
DHW
PUMP "L"
SYSTEM
PUMP "L"
BOILER
PUMP
DHW
PUMP
SYSTEM
PUMP
BOILER
PUMP "N"
DHW
PUMP "N"
SYSTEM
PUMP "N"
TERMINAL
STRIP
TERMINAL
STRIP
GND
GND
GND
TERMINAL STRIP
120V SUPPLY "N"
LOW VOLTAGE
120 VAC
HIGH VOLTAGE
BLOCKED
DRAIN SWITCH
X5-2
X5-11
X5-10
AIR PRESSURE
SWITCH
Figure 13-1 Ladder Diagram
