Let op – IBEA 4000 Series User Manual
Page 114

NL
NEDERLANDS
114
6. Blokkeer de ketting - duw de handbescherming naar
voren. Trek de handbescherming naar de handgreep
toe om de ketting te laten draaien.
7. De ketting bevat sneden rechts en links. Slijp altijd
naar buiten.
8. Houd de vijlhouder parallel aan de lijn van de ketting en
slijp de snede tot de beschadigde zone (boven- en
zijkant) verwijderd is.
9. Houd de vijl horizontaal.
10.Slijp eerst de meest beschadigde snede en slijp
vervolgens alle andere sneden tot dezelfde lengte.
11.De dieptebegrenzer bepaalt de dikte van de
geproduceerde houtresten en moet tijdens de
levensduur van de ketting behouden worden.
12.De hoogte van de dieptebegrenzer wijzigt als de snede
verslijt (de lengte neemt af). De hoogte moet dus beperkt
worden.
13.Gebruik de mal voor de diepte en vijl het deel van de
dieptebegrenzer dat uitsteekt.
14.Maak nu het voorste deel van de dieptebegrenzer rond.
LET OP
SCHAKEL DE MOTOR UIT ALVORENS U
DE KETTING SLIJPT.
DRAAG ALTIJD HANDSCHOENEN ALS
U WERKZAAMHEDEN AAN DE KETTING
VERRICHT.
19.Reinig de ketting van de kettingzaag met kerosine en
dompel hem in de olie onder als de ketting met hars
bevuild geraakt is.
N.B.
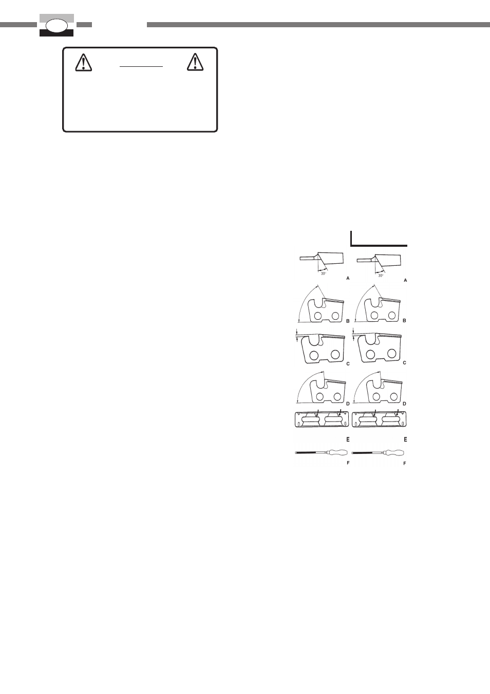
Correct geslepen sneden:
A) hoek bovenkant 30°
B) hoek zijkant 80°
C) zaaghoek meer dan 60°
D) diepte ijking 0,64 mm
De beschreven hoeken gelden voor OREGON 91VG en
CARLTON N1C-BL kettingen.
Neem de aanwijzingen van de fabrikant in acht voor het
slijpen van andere kettingen.
N.B.
De volgende factoren doen het gevaar voor terugslag
aanzienlijk toenemen.
- Te grote bovenhoek
- De kleine zijhoek
- Te kleine doorsnede vijl
- Te grote dieptebegrenzer
15.De aandrijfschakels verwijderen het zaagsel uit de sleuf
van het zwaard. Zorg er dus voor dat het onderste
uiteinde van de aandrijfschakels altijd geslepen is.
16.Leg de ketting in de olie als hem geslepen heeft en
verwijder al het slijpsel alvorens u de ketting gebruikt.
17.Breng olie op de ketting aan als hij geslepen is. Laat
de ketting langzaamaan draaien om het slijpsel te
verwijderen alvorens u de kettingzaag opnieuw gebruikt.
18.De ketting en het zwaard zullen eerder beschadigd
raken als de kettingzaag met slijpsel in de sleuf gebruikt
wordt.
1/4”
3/8 LP
60°
60°
85°
85°
KETTING - SLIJPEN EN ONDERHOUD
LEGENDA
A - Slijphoek
B - Verticale zaaghoek
C - 0,25"
D - Aanslaghoek
E - Hoekindex
F - Diam. 4.0 mm 5/32"
