Directory
Brands
Slant/Fin manuals
Equipment
Gas Conversion Field
Manual

Slant/Fin Gas Conversion Field User Manual

Page 9

  • Text mode
  • Original mode
background image

9

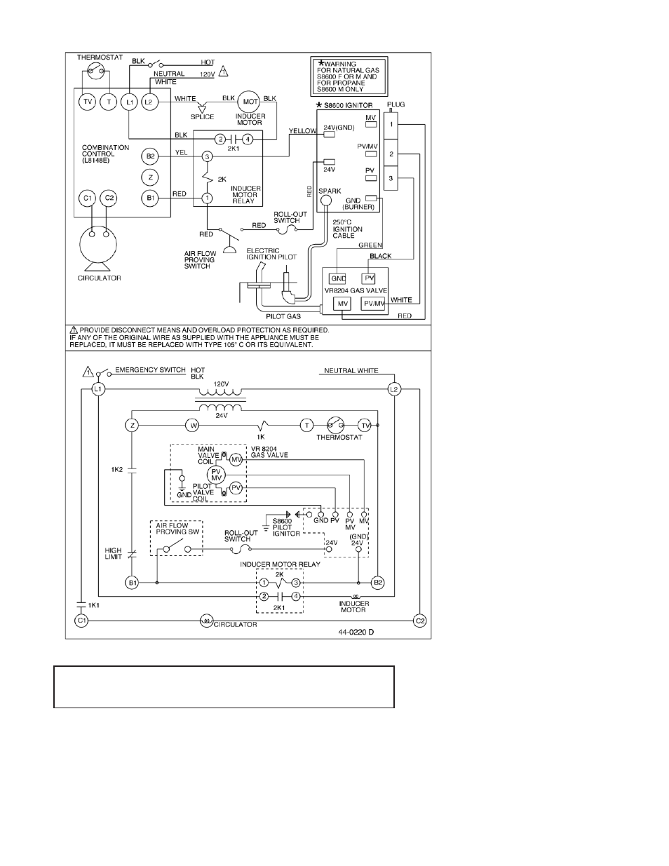
Wiring Diagram - Victory “V” Series Boilers

CAUTION: Label all wires prior to disconnection when servicing controls.

Wiring errors can cause improper and dangerous operation. “Verify proper

operation after servicing.”

Pages: 1 … 7 8 9 10 11 … 20
  • wrong Brand
  • wrong Model
  • non readable
See also other documents in the category Slant/Fin Equipment:
  • Jaguar (36 pages)
  • Gas Hot Water (24 pages)
  • Oil Hot Water (28 pages)
  • Gas Steam (16 pages)
  • G-Series (4 pages)
  • L-Series (4 pages)
  • SC-3 (27 pages)
  • SC-9 (32 pages)
  • CHS-85 (92 pages)
  • CHS-300 (24 pages)
  • CHS-85 (36 pages)
  • CHS-FS-40 (6 pages)
  • EC-20 Installation (16 pages)
  • EC-20 Assembly Instructions (20 pages)
  • EC-10 Installation (24 pages)
  • EC-10 Assembly Instructions (12 pages)
  • EC-10DV Series (15 pages)
  • EC-10DV Series Venting (8 pages)
  • LX-120CB (44 pages)
  • LX-90 (44 pages)
  • VSL-160C Part B (36 pages)
  • VSL-160C Part C (36 pages)
  • 3200-Plus (16 pages)
  • 3000 (8 pages)
  • GG-75H (28 pages)
  • GXH-230 (20 pages)
  • Galaxy Series (4 pages)
  • S-150 (28 pages)
  • S-34 Vestibule version (28 pages)
  • DHWG (8 pages)
  • HWT-40 (16 pages)
  • EH-M2 (12 pages)
  • EH-M3 (12 pages)
  • EM-10 Installation (20 pages)
  • EM-10 Service Manual (36 pages)
  • EH (6 pages)
  • TRDV Series (12 pages)
  • TRDV Series Venting (16 pages)
  • Intrepid Steam (24 pages)
  • J Series (4 pages)
  • JA Series (2 pages)
  • FS Series (1 page)
  • Kicker (2 pages)
  • Pak 80 (16 pages)
Home Brands Popular manuals Recently added
Manuals Directory

© 2012–2025, azmanual.top
All rights reserved.