Directory
Brands
Carrier manuals
Pumps
PERFORMANCE 50VT-A
Manual

Carrier PERFORMANCE 50VT-A User Manual

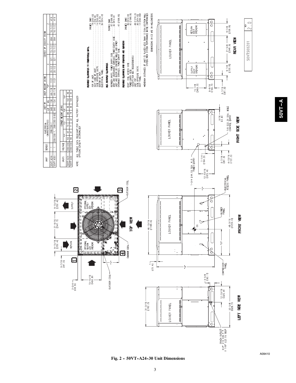
Page 3

  • Text mode
  • Original mode
Carrier PERFORMANCE 50VT-A User Manual | Page 3 / 32 Carrier PERFORMANCE 50VT-A User Manual | Page 3 / 32
Pages: 1 2 3 4 5 6 … 32
  • wrong Brand
  • wrong Model
  • non readable
See also other documents in the category Carrier Pumps:
  • SYNERGY 38YD (9 pages)
  • 38YCX (8 pages)
  • 50TFQ008-012 (56 pages)
  • INFINITY 50XT-A (4 pages)
  • 38QN (8 pages)
  • 50CR (32 pages)
  • 542D060 (18 pages)
  • 50LJQ008 (24 pages)
  • 38HQ (20 pages)
  • AIR COOLED SPLIT SYSTEM 38AQS008 (20 pages)
  • XPOWER 38VYX130 (14 pages)
  • 38E (20 pages)
  • AQUAZONE PTV (64 pages)
  • AQUAZONE 50PCH (52 pages)
  • 38QP024 (6 pages)
  • 38BYC (8 pages)
  • XPOWER 38VYX050 (14 pages)
  • AQUAZONE 50QE900-250FS (8 pages)
  • AQUAZONE RDS006-060 (44 pages)
  • 50YX (20 pages)
  • 50VQ (14 pages)
  • 50HQ (14 pages)
  • 50MQ (12 pages)
  • 10 SEER SPLIT-SYSTEM 38YCW (8 pages)
  • 38AUQ (36 pages)
  • WEATHERMASTER 2000 (9 pages)
  • COMFORT 25HCS (6 pages)
  • 50DQ (6 pages)
  • 38AC (6 pages)
  • 50RTG (28 pages)
  • AQUAZONE 50RTP03-20 (60 pages)
  • COMFORT 50EZ-A (6 pages)
  • 38AYB (4 pages)
  • 50YQ (16 pages)
  • 50ET (14 pages)
  • COMFORT SERIES 25HCB3 (8 pages)
  • 38QF (18 pages)
  • WEATHERMASTER III 38HQ (19 pages)
  • GT-PX (56 pages)
  • 50QQ (16 pages)
  • AQUAZONE 50VQP084-300 (48 pages)
  • 50JS (28 pages)
  • 50JS (4 pages)
  • 38AQ024 (14 pages)
  • 38QB (20 pages)
Home Brands Popular manuals Recently added
Manuals Directory

© 2012–2025, azmanual.top
All rights reserved.