Part one – your kidde carbon monoxide alarm – Kidde KN-COPP-3 (900-0099) User Manual
Page 7

5
Part One – Your Kidde Carbon Monoxide Alarm
Where to Install Your CO Alarm
Your Kidde CO alarm should be mounted in or near bedrooms
and living areas. It is recommended that you install a Kidde
CO alarm on each level of a multi-level home. You may use
the number and location of smoke alarms installed in your
home according to current building code requirements as a
guide to the location of your Kidde CO alarm(s).
WHEN CHOOSING YOUR INSTALLATION LOCATIONS,
MAKE SURE YOU CAN HEAR THE ALARM FROM ALL
SLEEPING AREAS. IF YOU INSTALL ONLY ONE CARBON
MONOXIDE ALARM IN YOUR HOME, INSTALL THE
ALARM NEAR BEDROOMS, NOT IN THE BASEMENT OR
FURNACE ROOM.
Two labels have been provided with important information
on what to do in case of an alarm. Add the phone number of
your emergency service provider in the space provided. Place
one label next to the alarm after it is mounted, and one label
near a fresh air source such as a door or window.
CAUTION:
This alarm will only indicate the presence of car-
bon monoxide at the sensor. Carbon monoxide may be pres-
ent in other areas.
IMPORTANT:
Improper location can affect the sensitive elec-
tronic components in this alarm. Please see the next section
describing where NOT to install this alarm.
Where Not to Install Your CO Alarm
To avoid causing damage to the unit, to provide optimum protection,
and to prevent unnecessary alarms, follow the directions below where
NOT to install this alarm:
It is recommended that you do not install this CO alarm in garages,
kitchens or furnace rooms. Installation in these areas could lead to
nuisance alarms, may expose the sensor to substances that could
damage or contaminate it, or the alarm may not be heard by per-
sons in other areas of the home, especially if they are sleeping.
In the garage, vehicle exhaust can contain some carbon monoxide.
These levels are higher when the engine is first started. Within hours
of starting a vehicle and backing it out of the garage, the levels pres-
ent over time can activate the alarm and become a nuisance.
In the kitchen and furnace room, some gas appliances can emit a
short burst of carbon monoxide upon start-up. This is normal. If your
CO alarm is mounted too close to these appliances, it may alarm
often and become a nuisance.
If you must install a Kidde CO alarm near a cooking or heating appli-
ance, install AT LEAST 5 feet away from appliance.
Do not install in excessively dusty, dirty or greasy areas such as
kitchens, garages and furnace rooms. Dust, grease or household
chemicals can contaminate or coat the alarm’s sensor, causing the
alarm not to operate properly.
Do not obstruct the vents located at the top and bottom of the
alarm. Place the alarm where drapes, furniture or other objects do
not block the flow of air to the vents.
Do not install in dead air space, such as peaks of vaulted ceilings or
gabled roofs, where carbon monoxide may not reach the sensor in
time to provide early warning.
Do not install in turbulent air from ceiling fans. Do not install near
doors and windows that open to the outside, near fresh air vents,
or anywhere that is drafty. Rapid air circulation from fans or fresh
air from outside may cause the sensor to display an inaccurate read-
ing in the presence of CO.
Do not install this alarm in a switch- or dimmer-controlled outlet.
Do not install in areas where the temperature is colder than 40˚F
(4.4˚C) or hotter than 100˚F (37.8˚C). These areas include uncondi-
tioned crawl spaces, attics, porches and garages. Extreme tempera-
tures will affect the sensitivity of the alarm.
Do not install CO alarm near deep cell large batteries. Large batter-
ies have emissions that can cause the alarm to perform at less than
optimum performance.
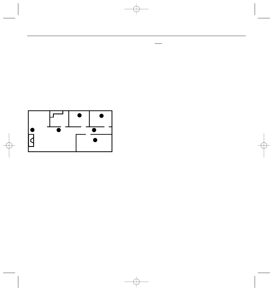
Recommended Locations
DINING
KITCHEN BEDROOM
BEDROOM
BEDROOM
LIVING ROOM
2507-7205-00 4/6/05 17:14 Page 7
