Great Plains CF600 Predelivery Manual User Manual
Page 6

4
Section 1 Assembly
CF500 and CF600 Hydraulic Cross-Fold Boom 506-582Q
2/2/06
Great Plains Mfg., Inc.
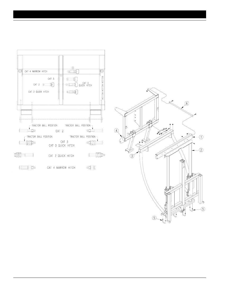
Elevator on Three Point Mount
1.
Hitch three-point mount to tractor. Refer to Figure 1-2
for correct pin mountings.
NOTE: The category 4 narrow hitch (CAT IV-N) spacers
are not standard parts supplied with the three-point boom.
Figure 1-2
Pin and Spacer Configuration for Three Point Mount
2.
Position tractor and mount in a clear, level area.
3.
Bolt receiver plate (1) to elevator frame (2) with 1/2-by-
1 1/4 bolts and flange nuts.
4.
Bolt mounting weldment (3) to the three-point mount
(4) using four 1/2-by-1 1/2-inch bolts, washers and
nuts at each bracket.
5.
Using forklift or hoist, position elevator on mounting
weldment so elevator rests on top of weldment.
6.
U-bolt elevator to mounting weldment using four u-
bolts and flange nuts (5).
7.
Using 1/2-by-1 1/4-inch bolts and flange nuts, bolt a
brace rod (6) to elevator and mount on left- and right-
hand sides as shown.
Figure 1-3
Elevator on Three-Point Mount
11939
16905
