Search
Directory
Brands
Multiquip manuals
Lighting
LT12P
Manual
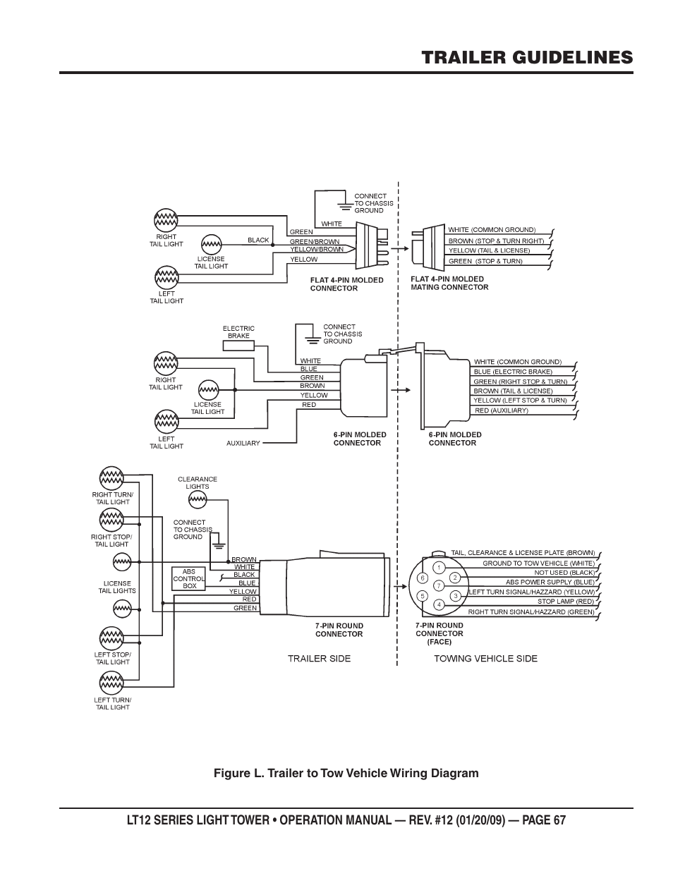
Trailer guidelines – Multiquip LT12P User Manual
Page 67
Text mode
Original mode
Trailer guidelines | Multiquip LT12P User Manual | Page 67 / 68
Pages:
1
…
63
64
65
66
67
68
wrong Brand
wrong Model
non readable
This manual is related to the following products:
LT12D
See also other documents in the category Multiquip Lighting:
LT12D
(58 pages)
LT12D50B
(40 pages)
T12D50SA
(46 pages)
T12D50SA
(62 pages)
LT12DAB
(60 pages)
LT12DAB
(40 pages)
LT6D
(70 pages)
LT6K
(70 pages)