Zone outputs 1,2,3,4 – Allen&Heath GR05 User Manual
Page 15

GR05 User Guide
15
Zone Outputs 1,2,3,4
This section describes the installer configuration of the zone outputs 1,2,3,4.
For each output you can adjust the level trim and equalisation. Front panel
signal metering lets you keep a check on signal activity and warns of overload.
The outputs provide line level signals which plug into the power amplifiers which
drive the loudspeakers. Do not connect direct to speakers.
To configure the unit switch off power, remove the top cover and adjust the
trimmers as shown. Power may be applied when setting up the trimmers. Avoid
the power supply components shown greyed out on the diagram.
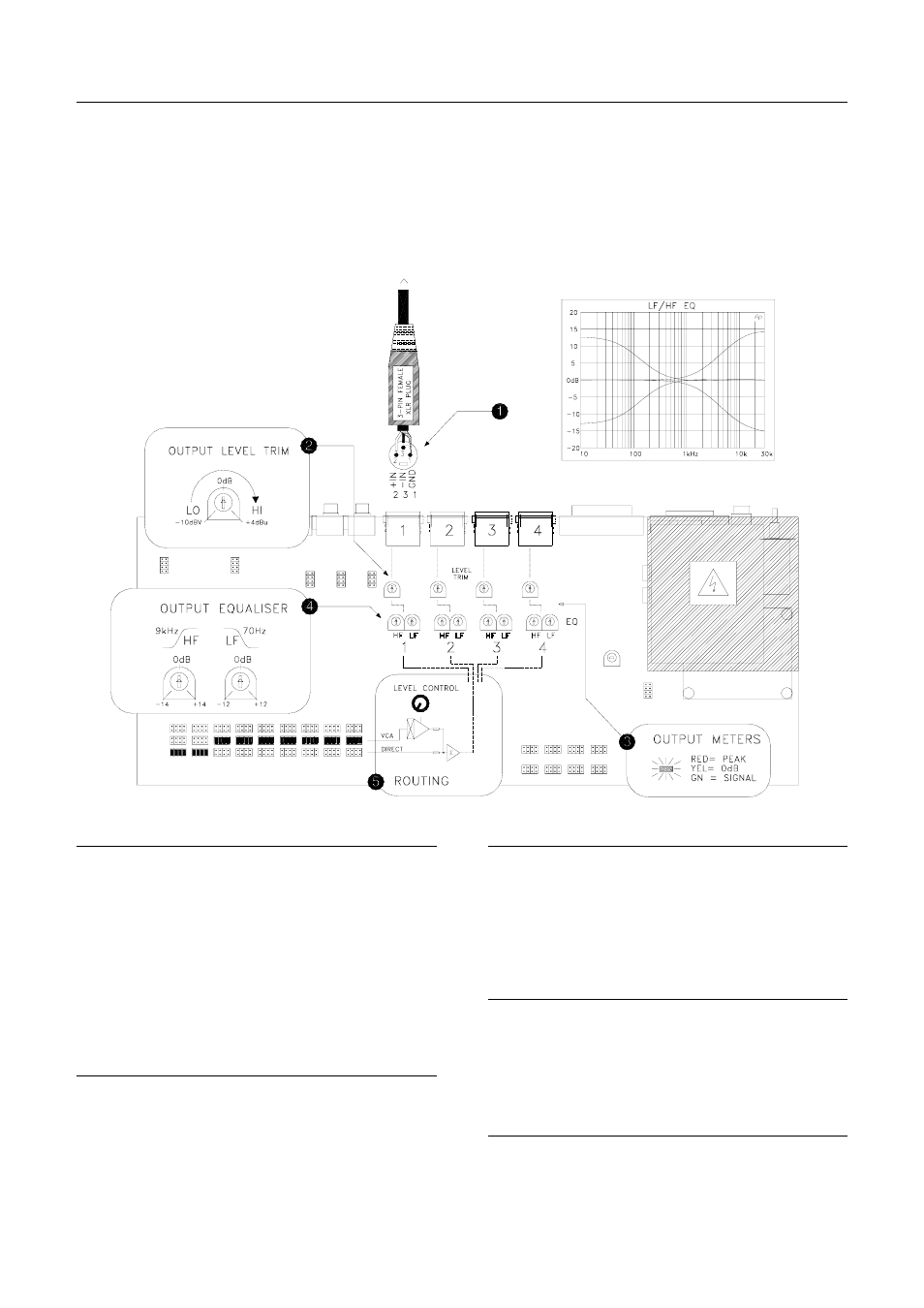
Output Connectors
These are 3-pin male XLR connectors. Use female XLR
plugs and good quality 2-core screened cable. The
outputs are impedance balanced which means they
provide interference rejection on long cable runs when
plugged into balanced equipment. They can also work
with unbalanced equipment without problem as long as
the cables are kept short (less than 10 metres.
Pin 1
= 0V ground (screen)
Pin 2
= Signal + (cold)
Pin 3
= Signal – (cold)
Output Level Trim
The output level can be set between low –10dBV and
high +4dBu by adjusting internal trimmers. Mid position
provides 0dBu output. You can also use these trimmers
to adjust the balance between the outputs.
Output Meters
3-colour LED meters display the output signal level after
the level controls but before the level trimmers. For best
performance the connected amplifier sensitivity should
be adjusted for the louder signals flashing between
green and yellow on the meters. Red warns 5dB before
signal overload.
Output Equaliser
Use the internal trimmers to adjust the low frequency
and high frequency response of each output. Centre
position gives a flat response. Boosting the EQ can
compensate for the loudness effect of low level
background music.
Routing
This shows the two paths each input signal can take to
each output, VCA or DIRECT.
