English – Vollrath Cayenne Heat Strips, Hard Wired User Manual
Page 9

9
ENGLISH
O
peratOr
’
s
M
anual
1
1
1
2
1
2
3
4
5
6
7
8
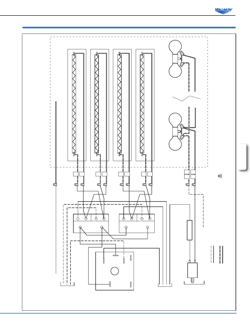
H1
P2
P1
L1
L2
H2
120V
120V
120 V
olt Optional Lights
Up to 6 Light Fixtures W
ired in Parellel
Heating Element #1
Heating Element #2
Heating Element #3
Heating Element #4
Light Switch
Fuse Use W/Lighted units above 16
Amps
L2
Black
Ground W
ire
Green
Green
L1 Red
Optional
Heater Assembly
Control Assembly
Ceramic W
ire Nuts
450 °C T
emprature Rated W
ire
200 °C T
emprature Rated W
ire
208 - 240 V
olt Heater W/Infinate Control
Assembly W
iring Diagram
White Nuetral W
ire
Power Relay
Power Relay
e
lectRical
d
iagRam
208 - 240 v
olt
h
eateR
~ i
nfinite
c
ontRol
See also other documents in the category Vollrath Kitchen:
- JUNIOR Out-of-Chamber Vacuum Pack Machine (34 pages)
- MEDIO In-Chamber Vacuum Pack Machines (48 pages)
- Immersion Circulator (6 pages)
- Cayenne Dual Warmer (12 pages)
- Cayenne Model 1001 Warmer (4 pages)
- Cayenne Model 1220 Full-Size Heat 'N Serve Rethermalizers (4 pages)
- Cayenne Model T43R Heat 'N Serve. 4/3 Rethermalizer (12 pages)
- Cayenne Model TW-27R Twin 7-Quart Rethermalizer (10 pages)
- Cayenne Round Heat 'N Serve Rethermalizer (5 pages)
- Cayenne Warmer with Drain (6 pages)
- Mirage Induction Rethermalizers 11 Qt (6 pages)
- Mirage Induction Rethermalizers 7 Qt (18 pages)
- Mirage Drop-In Induction Rethermalizer 11 Qt (5 pages)
- Mirage Drop-In Induction Rethermalizers 7 Qt (6 pages)
- Mirage Drop-In Induction Warmers 11 Qt (5 pages)
- Retro Stock Pot Kettle Rethermalizers 11 Qt (4 pages)
- Retro Stock Pot Kettle Rethermalizers 7 Qt (6 pages)
- Cayenne 1776 & 1777 Colonial Kettle (4 pages)
- Somerville Buffet Service (16 pages)
- Heated Cubed Countertop Display Cases (6 pages)
- Refrigerated Cubed Countertop Display Cases (6 pages)
- Cayenne Heat Strips, Cord and Plug (12 pages)
- Refrigerated Curved Countertop Self-Serve Display Cases (6 pages)
- Heated Curved Countertop Display Cases (6 pages)
- Cayenne Heated Bain Marie Curved Display Case (8 pages)
- Cayenne Heated Angled Display Cases (10 pages)
- KDC1418-2-06 Acrylic Knock Down Bakery Display Cases (2 pages)
- KDC1418-3-06 Acrylic Knock Down Bakery Display Cases (2 pages)
- KDC1418-4F-06 Acrylic Knock Down Bakery Display Cases (2 pages)
- KDC1418-4R-06 Acrylic Knock Down Bakery Display Cases (2 pages)
- Hot Cold Drop-ins (8 pages)
- Hot Cold Drop-ins 1 WELL (5 pages)
- One Well Hot Modular Drop-Ins (6 pages)
- NSF7 Refrigerated Cold Pans (8 pages)
- Refrigerated Frost-Top (8 pages)
- Signature Server with Laminate or Corian Countertops (6 pages)
- Signature Server Hot Food Base with Touch-Temp Panel Installation Instructions (2 pages)
- Affordable Portable Hot Food Station Deluxe (12 pages)
- Affordable Portable Hot Food Station Installation Instructions (2 pages)
- Plate Rests (2 pages)
- 217 (39 pages)
- 238R (39 pages)
- E111 (35 pages)
- E131 (29 pages)