Operation, Page 78, Generator control sequence – Xantrex Technology 120 VAC/60 User Manual
Page 86

OPERATION
Page
78
2001 Xantrex Technology, Inc.
5916 - 195th Street N. E.
Arlington, WA 98223
Telephone: 360/435-8826
Fax: 360/435-2229
www.traceengineering.com
SW Series Inverter/Charger
Part No. 2031-5
Rev. C: February 2001
Most diesel generators are controlled like the Onan type, except that they also require that glow plugs be
operated before the generator start is attempted. The SW Series Inverter/Charger automatic generator
control system can also provide glow plug control. The addition of an external relay may be required to
operate the glow plugs due to the amperage required by the glow-plugs and to separate the stop signal
circuit. For this type of generator, select GLOWSTOP from the SET RY7 FUNCTION menu item under the
GEN STARTING DETAILS (13) menu heading.
3-TO-2 WIRE CONVERTERS
Another option for three-wire start-type generators is a 3-to-2-wire converter which vary from simple relays
to advanced microprocessor types. Onan offers a simple 3-to-2-wire converter that works well for many
installations. Universal 3-to-2 wire converters can be used with virtually any generator as well as control
glow plugs for diesel generators. These also feature additional system components to signal the
generator control system to start.
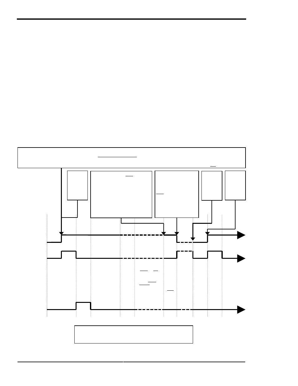
GENERATOR CONTROL SEQUENCE
The relays close in a specific sequence to start the generator. Some of the timing periods are adjustable
through the GEN STARTING DETAILS (13) menu heading. GLOWSTOP has been added to the
sequence for diesel generator applications. RY7 can be configured for either “RUN” or “GLOWSTOP”
operation. The two control relays complete the following sequence:
Figure 26, Relay RY7 and RY8 Sequence
Next ’auto
generator
Start
sequence
has been
initiated
The ’auto generator control sequence’ is initiated if the battery voltage remains below the ’Set start volts DC’ setting (unless
’Start/End Quiet time h:m’ is enabled) for the required period of time or the ’Read LBCO 30 sec start VDC’ setting for 30 seconds;
or if the load amps reaches the ’Load Start amp AC’ setting longer than the ’Set Load Start delay min’ period. The manual
generator control sequence is initiated if generator is manually turned on via ’Set Generator’ to ON.
START
DELAY
PERIOD
8 SECS
FIXED
SET PRE
CRANK
SECONDS
10 SECS.
DEFAULT
SET MAX
CRANKING
SECONDS
10 SECS
DEFAULT
(RY8 goes
off with a
1 sec delay
when
AC HOT IN
>80 VAC)
GEN-RUN PERIOD
(Determined by the
voltage and time
settings under the
’BATTERY
CHARGING’ heading
or by the current and
delay min settings
under the ’GEN
AUTO START
SETUP’ heading)
SET GEN
WARM-UP
SECONDS
60 SECS
DEFAULT
(Starts once
voltage
exceeds
80 VAC)
COOL
DOWN
PERIOD
40 SECS
FIXED
(Only used
with ’Set
Generator’ to
AUTO)
LOCK ON
GOOD
DELAY
PERIOD
12 SECS
FIXED
(Starts when
AC is within
108 to 132
VAC
and
53-67 Hz)
Generator is
off and
waiting for
next ’auto
generator
start
sequence
GEN CONTROL RELAYS
OFF = relay contact closed from N.C. to COM (relay disengaged)
ON = relay contact closed from N.O. to COM (relay engaged)
Time (Sec) 0
8
18
28
88
100
+100 +140
0
8
18
First ’auto
generator
start
attempt’
RY7
RUN (or)
GLOW-
STOP
OFF
OFF
ON
ON (engages to the N.O. position)
OFF
ON
OFF (engages to the N.C. position)
ON
ON
OFF
START
DELAY
PERIOD
8 SECS
FIXED
SET PRE
CRANK
SECONDS
10 SECS.
DEFAULT
RY8
ON
OFF (engages to the N.C. position)
Second
‘auto
generator
start
attempt’
The generator will stop
immediately with an
inverter fault or if ’Set
Generator’ is set to
OFF. Also a "Kill Before
Cranking" signal is
enabled before the next
'auto generator start
attempt'
The auto generator stop sequence
is initiated if: (1) The battery
voltage has been held at the ’Set
Bulk volts DC’ setting for the ’Set
Absorption time h:m’ period or (2)
The load amps drops below the
’Load Start amps AC’ setting for
longer than the ’Set Load Stop
delay min’ period.
