Technical information, Installation diagrams, Page 121 – Xantrex Technology 120 VAC/60 User Manual
Page 129

TECHNICAL INFORMATION
2001 Xantrex Technology, Inc.
5916 - 195th Street N. E.
Arlington, WA 98223
Telephone: 360/435-8826
Fax: 360/435-2229
www.traceengineering.com
SW Series Inverter/Charger
Part No. 2031-5
Rev. C: February 2001
Page
121
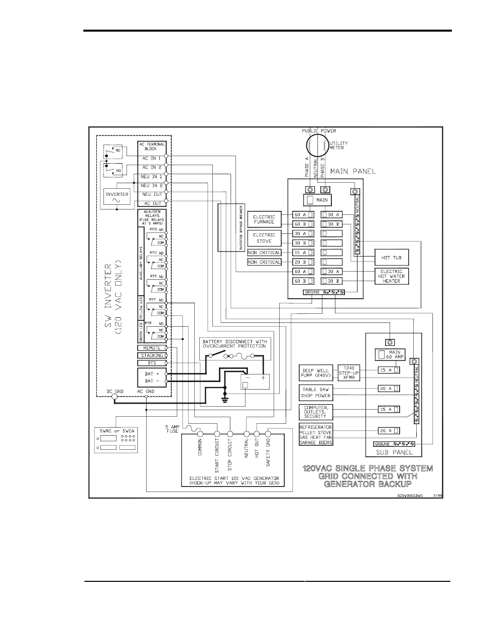
INSTALLATION DIAGRAMS
The following diagrams and information is provided to assist you or your system installer with the design
and installation of the Trace™ SW Series Inverter/Charger. Due to the variety of applications, models
available, and differences in local and national electrical codes, these diagrams and information should be
used as general guidelines only. You must consider your application and local and national electrical
codes when designing and installing your system.
Figure 38, Installation Diagram, 120 VAC, 1 Phase, Grid Connected, Generator Backup
