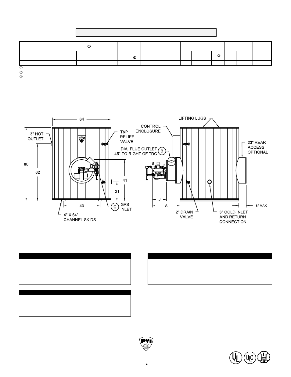
PVI Industries 500 N 750A-TPL User Manual
Low no, Turbopower, Packaged water heater nickelshield
PVI Industries 500 N 750A-TPL User Manual | 1 page See also other documents in the category PVI Industries Water boiler:
- 72 N 125A-MXG (1 page)
- 2500P600A-TPGO (1 page)
- 20 P 125A-MXS (1 page)
- 3500N400A-TPO (1 page)
- PV 6150b (2 pages)
- Water Heater (1 page)
- PV500-45C (42 pages)
- 1000 P 225A-TPL (1 page)
- 45P175A-E (1 page)
- 45N300A-E (1 page)
- TurboPower Tank Series (1 page)
- PV 500-6 (14 pages)
- 750 P 125A-TPGO (1 page)
- PV500-47C (40 pages)
- PV500-25 (16 pages)
- 3000N600A-TPO (1 page)
- Durawatt CL (1 page)
- PV 6315 (2 pages)
- 1500PHE125A-TPGO (1 page)
- 1500 P 250A-TPL (1 page)
- QUICKDRAW PV500-26 (16 pages)
- TurboPower 100N125A-TPL (1 page)
- PV 6813 (2 pages)
- NickelShield Tank Series (1 page)
- 500 N 400A-TPL (1 page)
- Storage and Semi-instantaneous Steam Heaters PV500-25 (11 pages)
- PV 6127b (2 pages)
- 250N600A-TPO (1 page)
- 20 N 119A-MXS (1 page)
- PV 6112b (2 pages)
- CSX Single-Exchanger (2 pages)
- PV 6619 9 (3 pages)
- PV 6323 (2 pages)
- 1000 N 225A-TPO (1 page)
- NickelShield PV 6382 07 (1 page)
- PV 6685 2/05 1 (2 pages)
- 1000 N 600A-TPL (1 page)
- Durawatt Polymer-Plated Storage Tank (1 page)
- 54 P 90A-MXG (1 page)
- PV 6126b (2 pages)
- 1000P1250A-TPGO (1 page)
- 150 (44 pages)
- Polyshield 119 Gallon Tank Series (1 page)
- PV 6319 (2 pages)
