Electrical connections (continued) – Sterling TUBULAR GAS FIRED DIRECT SPARK PROPELLER UNIT HEATERS GG-30 User Manual
Page 13

13
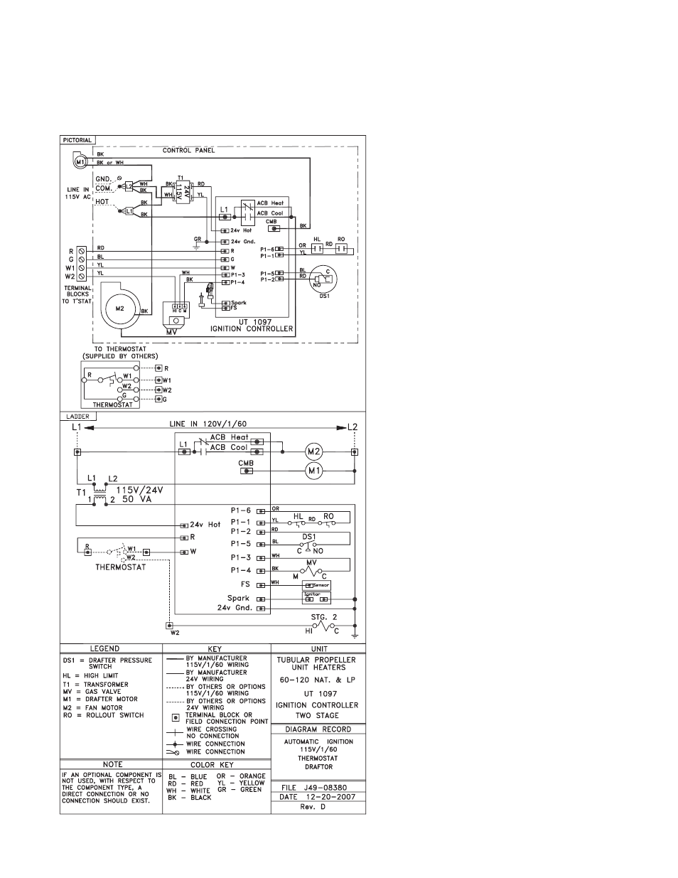
Figure 10C - Tubular Propeller Units 60-120 with Natural and Propane (LP) Gas 
 
with Optional Two Stage Gas Control and UT Control Board
ELECTRICAL CONNECTIONS (continued)
NOTICE: See Figures 7, 8, 9, 10B, 10C, 11B 
and 11C for connecting the thermostat to the 
unit heater. If using a standard low voltage 
thermostat with a sub-base switch for fan 
control, connect the G terminal of the thermostat 
to the G terminal of the unit heater.
                    This manual is related to the following products:                                                            
                                            - TUBULAR GAS FIRED DIRECT SPARK PROPELLER UNIT HEATERS GG-60 TUBULAR GAS FIRED DIRECT SPARK PROPELLER UNIT HEATERS GG-105 TUBULAR GAS FIRED DIRECT SPARK PROPELLER UNIT HEATERS GG-120 TUBULAR GAS FIRED DIRECT SPARK PROPELLER UNIT HEATERS GG-45 TUBULAR GAS FIRED DIRECT SPARK PROPELLER UNIT HEATERS GG-75 TUBULAR GAS FIRED DIRECT SPARK PROPELLER UNIT HEATERS GG-90
 
