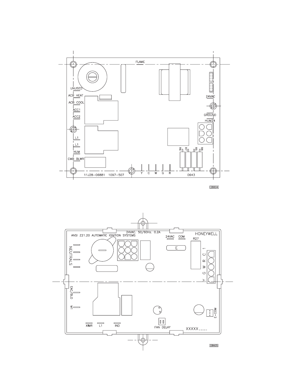
Electrical connections (continued) – Sterling TUBULAR GAS FIRED DIRECT SPARK PROPELLER UNIT HEATERS GG-30 User Manual
Page 11
                    This manual is related to the following products:                                                            
                                            - TUBULAR GAS FIRED DIRECT SPARK PROPELLER UNIT HEATERS GG-60 TUBULAR GAS FIRED DIRECT SPARK PROPELLER UNIT HEATERS GG-105 TUBULAR GAS FIRED DIRECT SPARK PROPELLER UNIT HEATERS GG-120 TUBULAR GAS FIRED DIRECT SPARK PROPELLER UNIT HEATERS GG-45 TUBULAR GAS FIRED DIRECT SPARK PROPELLER UNIT HEATERS GG-75 TUBULAR GAS FIRED DIRECT SPARK PROPELLER UNIT HEATERS GG-90
 

