Directory
Brands
Follett manuals
Water equipment
VU300
Manual

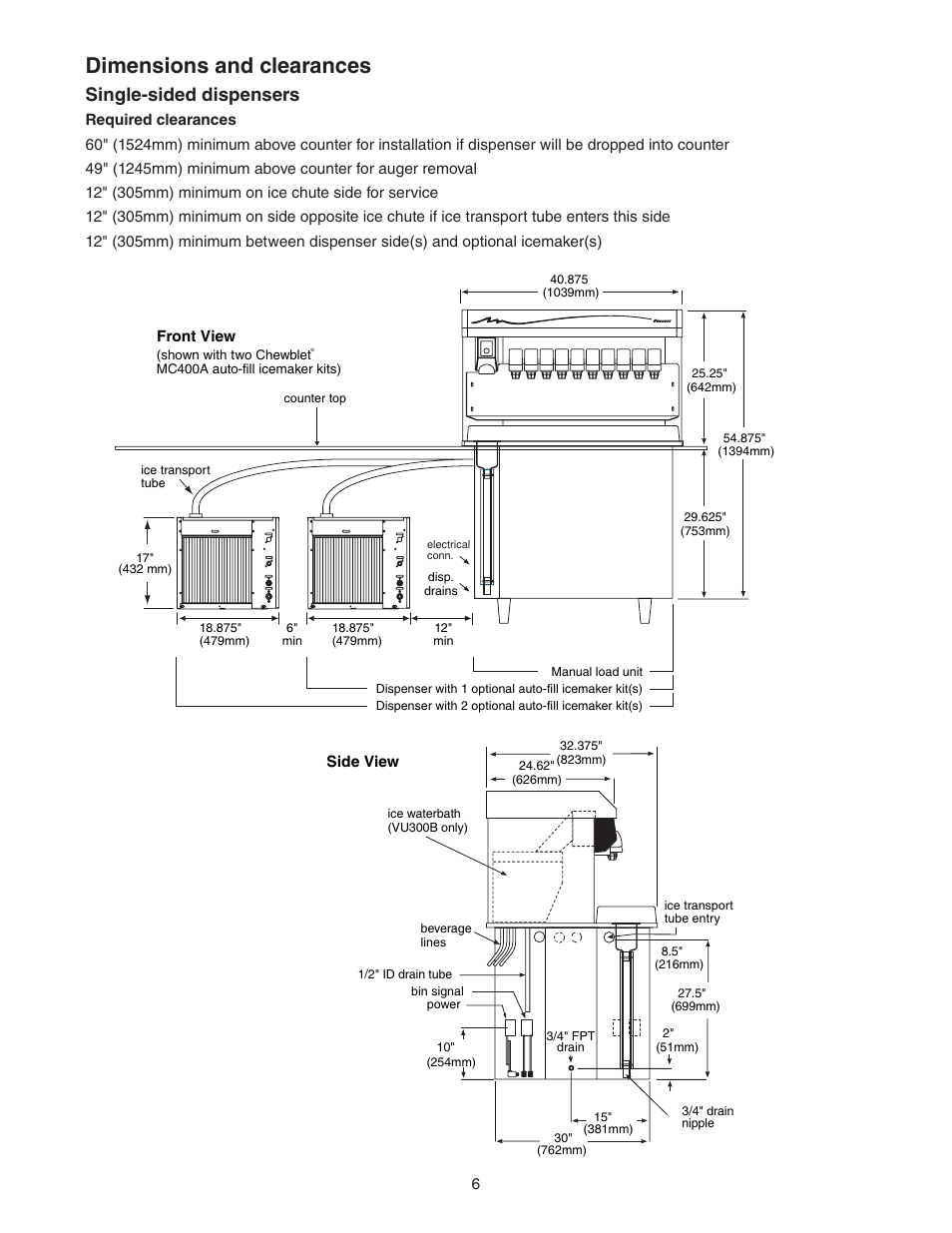
Dimensions and clearances, Single-sided dispensers – Follett VU300 User Manual

Page 5

  • Text mode
  • Original mode
Dimensions and clearances, Single-sided dispensers | Follett VU300 User Manual | Page 5 / 22 Dimensions and clearances, Single-sided dispensers | Follett VU300 User Manual | Page 5 / 22
Pages: 1 … 3 4 5 6 7 … 22
  • wrong Brand
  • wrong Model
  • non readable
See also other documents in the category Follett Water equipment:
  • U155XR400A/W (24 pages)
  • 50 (32 pages)
  • 50 Series (2 pages)
  • 110CR400A/W (32 pages)
  • VU155N Series (20 pages)
  • 50Hz (2 pages)
  • C/E12CI400A (40 pages)
  • 00119628R01 (24 pages)
  • C/E50HT400A/W (32 pages)
  • MU155N Series (20 pages)
  • 110 Series (28 pages)
  • VU155N (2 pages)
  • 230V 50Hz (20 pages)
  • U155 (24 pages)
  • VU155K (24 pages)
Home Brands Popular manuals Recently added
Manuals Directory

© 2012–2025, azmanual.top
All rights reserved.