Honeywell AQUASTAT L8124E User Manual
Page 4

L8124A,C,E,L AND M AQUASTAT® RELAYS
95-6571—11
4
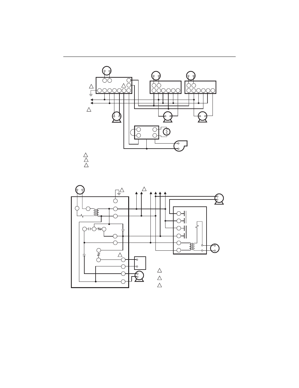
Fig. 5. L8124A in an oil-fired, forced hot water, tankless, zoned, pump system.
Fig. 6. L8124A,C multizone system with circulator connections and internal schematic.
L1
(HOT)
L2
1
2
3
POWER SUPPLY. PROVIDE DISCONNECT MEANS AND OVERLOAD PROTECTION AS REQUIRED.
CONTROL CASE MUST BE CONNECTED TO EARTH GROUND. USE GROUNDING SCREW PROVIDED.
B1 IS 1/4 IN. TAB TERMINAL.
T
T
L2
L1 C1 C2 B2
ZR
ZC
B1
M8822
3
2
BURNER
AND
IGNITION
L8124A
G
T
T
F
F
T87F
T
T
1
2
3
4
5
6
T87F
R845 RELAY
R8184
T
T
1
2
3
4
5
6
T87F
R845 RELAY
PUMP
PUMP
PUMP
BLACK
WHITE
ORANGE
C554
1
M8827
L1
(HOT)
L2
1
1
2
3
2
3
POWER SUPPLY. PROVIDE DISCONNECT MEANS AND
OVERLOAD PROTECTION AS REQUIRED.
CONTROL CASE MUST BE CONNECTED TO EARTH
GROUND. USE GROUNDING SCREW PROVIDED.
B1 IS 1/4 IN. TAB TERMINAL.
LINE VOLTAGE
OIL BURNER
RELAY OR
GAS VALVE
LINE VOLTAGE
CIRCULATOR
C2
C1
B2
B1
R
B
HIGH
LIMIT
ZC
ZR
1K1
B
R
W
LOW LIMIT/
CIRCULATOR
1K
2
2
1
4
3
5
6
1
G
T
T
L8124A,C
LOW VOLTAGE
THERMOSTAT
1K2
ZONE 2
LOW VOLTAGE
THERMOSTAT
R845A RELAY ZONE 2
ZONE 2
CIRCULATOR
TO ADDITIONAL
R845A RELAYS
FOR OTHER ZONES