Directory
Brands
Honeywell manuals
Radiators
AQUASTAT L8124E
Manual

Honeywell AQUASTAT L8124E User Manual

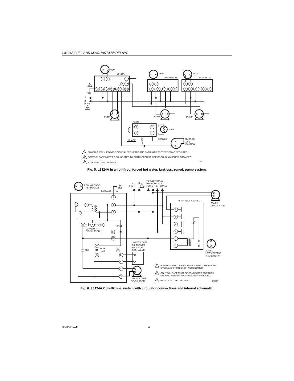
Page 4

  • Text mode
  • Original mode
Honeywell AQUASTAT L8124E User Manual | Page 4 / 8 Honeywell AQUASTAT L8124E User Manual | Page 4 / 8
Pages: 1 2 3 4 5 6 … 8
  • wrong Brand
  • wrong Model
  • non readable
This manual is related to the following products:
  • AQUASTAT L8124M AQUASTAT L8124L AQUASTAT L8124C AQUASTAT L8124A
See also other documents in the category Honeywell Radiators:
  • HZ-7200 (12 pages)
  • HZ-315 (15 pages)
  • HZ-335 (5 pages)
  • R841E (2 pages)
  • HZ-510 (20 pages)
  • HZ-339 (19 pages)
  • HEAT BLASTER HZ-614 (18 pages)
  • HZ-7200 (12 pages)
  • TELEPHONE ACCESS MODULE W8735D (2 pages)
  • R841C-E (7 pages)
Home Brands Popular manuals Recently added
Manuals Directory

© 2012–2025, azmanual.top
All rights reserved.