Md-1002 dimensions – AMX MT-1002 Modero G5 Tabletop 10.1" Multi-Touch Panel User Manual
Page 16

Modero G5 Touch Panels - Installation & Hardware Reference Manual
16
| TOC
MD-1002 Specifications (Cont.)
Optional Accessories
•
CB-MSA-10, Rough-In Box and Cover Plate (FG2265-08)
•
MSA-MMK2-10, Multi Mount Kit, for use with MSD-1001-L2, RMBK-1001 (FG2265-21)
•
MSA-AMK2-10, Any Mount Kit, for use with MSD-1001-L2, RMBK-1001 (FG2265-36)
•
MSA-RMK-10, Rack Mount Kit for 10” Modero Wall Mount Touch Panel (FG2265-14)
•
MXA-MPL, Modero Multi Preview Live (FG5968-10)
•
PS-POE-AT-TC, PoE Injector, 802.3AT Compliant (FG423-84)
•
NXA-ENET8-POE+, Gigabit PoE Ethernet Switch (FG2178-64)
•
MXA-CLK, Modero Screen Cleaning Kit (FG5968-16)
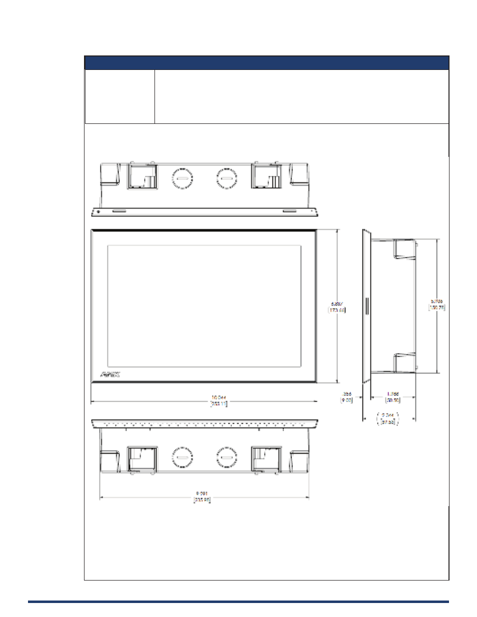
MD-1002 Dimensions
FIG. 9 MD-1002 Dimensions
NOTE: Detailed specifications drawings for the MD-1002 are available to download from www.amx.com.