Unvented (vent-free) logmate, Firebox, Installation – Desa FBPS User Manual
Page 8: Continued, Built-in or internal wall firebox installation

8
105163
UNVENTED (VENT-FREE) LOGMATE
®
FIREBOX
®
1.
Frame in rough opening. The firebox
framing should be constructed of 2 x 4
lumber or heavier. Construct framing
using dimensions shown in Figure 8 and
Figure 9, page 9. It is recommended that
the framing be constructed first and the
unit be placed in position. After sliding
the unit into place, the flanges may be
nailed to the framing before applying the
wallboard to the exterior framing.
2.
If the vent-free firebox is to be installed
directly on carpeting, tile (other than
ceramic), or any combustible material
other than wood flooring; the vent-free
firebox must be installed upon a metal
or wood panel extending the full width
and depth of the vent-free firebox.
BUILT-IN OR INTERNAL WALL
FIREBOX INSTALLATION
Built-in installation of this firebox involves
installing firebox into a framed-in enclo-
sure. This makes the front of firebox flush
with wall. If installing a mantel above the
firebox, you must follow the clearances
shown in Figure 7. Follow the instructions
below to install the firebox in this manner.
INSTALLATION
Continued
Mantel Clearances for Projected
Built-In Installation
If placing custom mantel above built-in
firebox, you must meet the minimum allow-
able clearance between mantel shelf and top
of firebox hood shown in Figure 7. These
are the minimum allowable mantel clear-
ances for a safe installation. Use larger clear-
ances wherever possible to minimize the
heating of objects and materials placed on
the mantel.
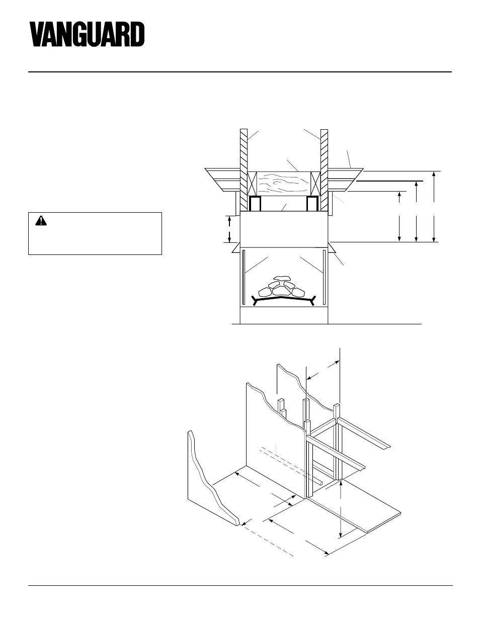
Figure 7 - Minimum Mantel Clearances for Projected or Built-In Installation
CAUTION: Do not allow the
vent-free gas log heater to touch
or extend beyond the firebox
screen.
If your installation does not meet the mini-
mum clearances shown in Figure 7, you must:
• raise the mantel to an acceptable height,
OR
• remove the mantel.
4" Min.
43
3
/
4
" Min.
36" Min. to 
Facing Wall
22
3
/
4
" Min.
Facing
Wall
Wallboard
Gas Line
Facing Wall
(Base line)
Board
Base
40
1
/
4
" Min.
Figure 8 - Framing for Built-In or Internal Wall Firebox Installation
Supplied Firebox
Hoods Must Be
Used at All Times
Wire-mesh
Screen
Firebox Top
Mantel Shelf
3"
6"
9
1
/
4
"
Combustible 
Material 1 
1
/
2
"
Max Thicknes
s
,,
,,
,,
,,
,,
,,
Note: All vertical
measurements are
minimum distances
from top of fireplace
hood to bottom of mantel
shelf. These minimum
clearances replace any
other recommended
clearances supplied with
your ANS Z21.11.2
approved gas logs.
Wall board or facing material 
(above firebox) may be of
combustible material, including 
decorative mantel ornaments
or other similar projections 
off of the facing material.
Top Frame
(Combustible Material)
12"
15"
18"
7" Min.
Note: Fireplace 
shown as cross-
section for clarity. 
Mantel material 
may not be less 
than 7" from top of
hood. Do not cover 
louver openings.
