Owner’s manual, Product features, Product specifications – Desa FBPS User Manual
Page 3: Operation, Blower accessory, Brick liner

3
105163
OWNER’S MANUAL
PRODUCT
FEATURES
OPERATION
This firebox is designed for use with ap-
proved ANS Z21.11.2 decorative type
unvented multisided room heaters. (Physi-
cal size limitations apply. Refer to mini-
mum firebox requirements supplied with
log heater.) The maximum size log this
firebox will accept is: width of 32", depth of
19", and height of 17".
This firebox requires no outside venting or
chimney making installation easy and inex-
pensive. When used without the blower, the
firebox requires no electricity making it
ideal for emergency backup heat.
BLOWER ACCESSORY
The FBPS firebox will accept the GA3500A
accessory. The variable blower allows you
to select the fan speed you desire. The blower
circulates heated air from the firebox into
the room. Use of blower is optional.
BRICK LINER
This firebox features a concrete brick liner.
As with all concrete liners, this liner may
develop slight cracks when exposed to heat.
These cracks will not affect the perfor-
mance of the firebox or vent-free gas logs.
PRODUCT
SPECIFICATIONS
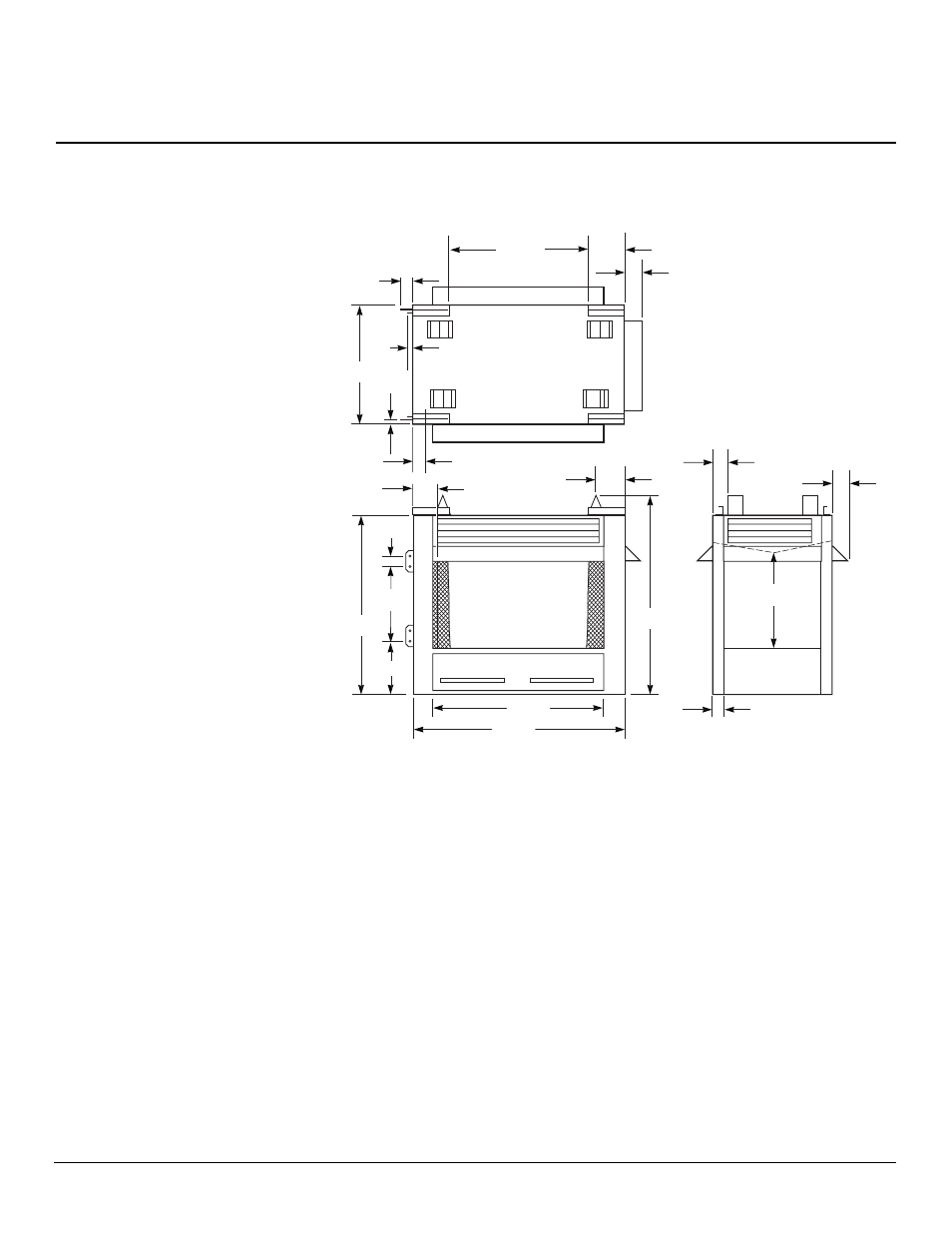
Figure 1 - Peninsula (Three-Sided) Firebox
4
1
/
2
"
4
3
/
4
"
33
3
/
4
"
3
5
/
8
"
4"
4"
1
1
/
4
"
1/2"
5/8"
19
1
/
2
"
40"
18
1
/
2
"
9
1
/
8
"
36
1
/
4
"
1
3
/
4
"
4"
1
1
/
2
"
24"
36
1
/
2
"
3" TYP.
42
1
/
2
"
(Edge of
Brick Liner)
