Instalación del panel frontal de la torre, Instalación del panel frontal de la torre -11 – Dell PowerEdge 2600 User Manual
Page 87
Attention! The text in this document has been recognized automatically. To view the original document, you can use the "Original mode".

Montaje del panel para el lateral izquierdo de la
torre
^ NOTA: tal vez sea más cómodo colocar el chasis verticalmente en la posición de torre
mientras Instala el panel del lateral Izquierdo.
Coloque el panel del lateral izquierdo de la torre en posieión eon el extremo posterior
separado 12,7 milímetros (0,5 pulgadas) de la parte posterior del ehasis y, a eontinuaeión,
desliee el panel lateral haeia el panel frontal hasta que se detenga.
^ NOTA: tal vez tenga que inclinar ligeramente el chasis con el fin de hacer hueco para
Instalar el panel del lateral Izquierdo.
Compruebe si el panel está a ras del frontal del ehasis del sistema.
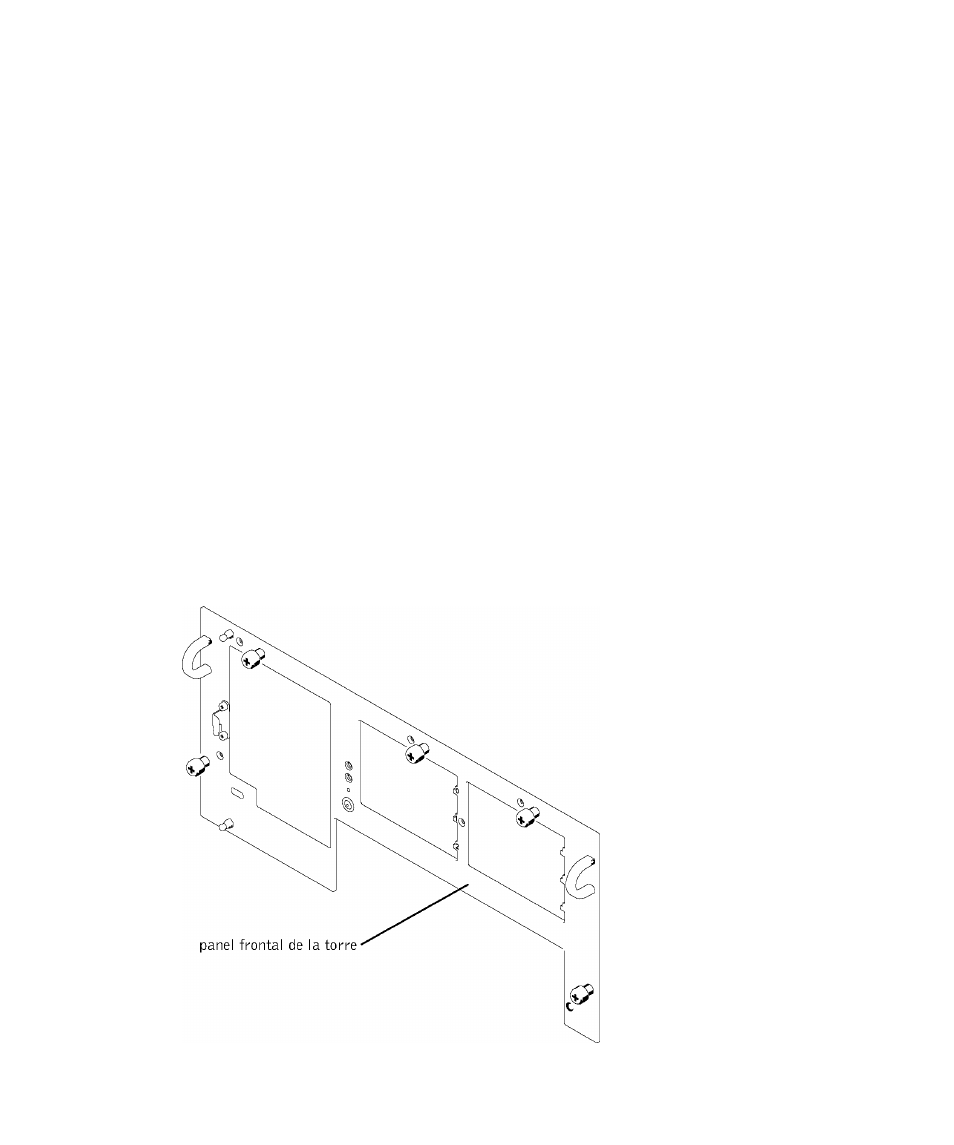
Instalación del panel frontal de la torre
1 Instale el panel frontal de la torre en la parte frontal del ehasis (eonsulte la Figura 5-6)
y sujételo eon los 16 tornillos Torx T-10.
2 Vuelva a instalar las unidades de diseo duro en sus ranuras eorrespondientes.
F i g u r a 5 - 6 . M o n t a j e d e l p a n e l f r o n t a l d e l a t o r r e
G u í a d e c o n v e r s i ó n d e e s t a n t e a t o r r e |
5-11