Directory
Brands
Wine Guardian manuals
Equipment
Ducted Split Wine Cellar Cooling Systems (SS200)
Manual

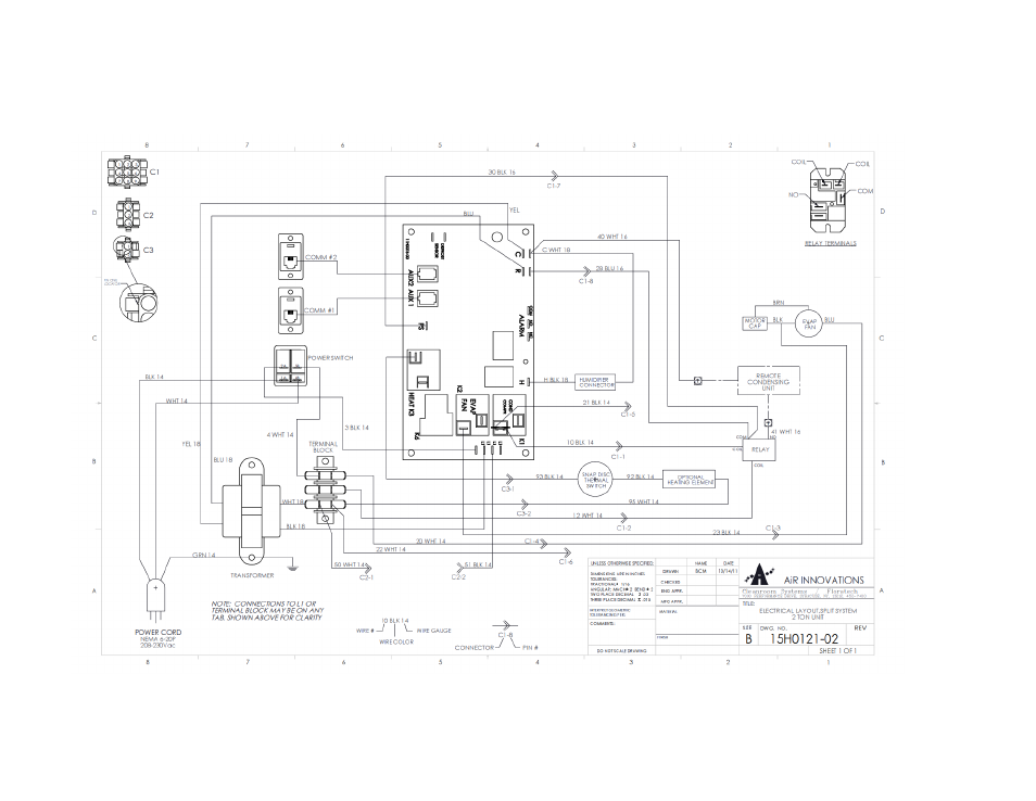
Wiring diagram for ss200 units – Wine Guardian Ducted Split Wine Cellar Cooling Systems (SS200) User Manual

Page 17

  • Text mode
  • Original mode
Wiring diagram for ss200 units | Wine Guardian Ducted Split Wine Cellar Cooling Systems (SS200) User Manual | Page 17 / 68 Wiring diagram for ss200 units | Wine Guardian Ducted Split Wine Cellar Cooling Systems (SS200) User Manual | Page 17 / 68
Pages: 1 … 15 16 17 18 19 … 68
  • wrong Brand
  • wrong Model
  • non readable
This manual is related to the following products:
  • Ducted Split Wine Cellar Cooling Systems (SS088) Ducted Split Wine Cellar Cooling Systems (SS050) Ducted Split Wine Cellar Cooling Systems (SS025)
See also other documents in the category Wine Guardian Equipment:
  • Ducted Wine Cellar Cooling System (D025) - Quick Start (2 pages)
  • Ducted Wine Cellar Cooling System (D025) - Manual (58 pages)
  • Through-the-Wall Cooling System - Manual (47 pages)
  • Through-the-Wall Cooling System - Quick Start (2 pages)
  • Through-the-Wall Cooling System - Install Duct Collars & Ductwork (3 pages)
  • Humidifier - Quick Start (2 pages)
  • Humidifier - Manual (22 pages)
  • Wine Cellar Cooling Systems 50Hz (WG 40) (54 pages)
  • Through-the-Wall Wine Cellar Cooling Systems 50Hz (WG15) - Manual (41 pages)
  • Through-the-Wall Wine Cellar Cooling Systems 50Hz (WG15) - Manual (71 pages)
  • Ducted Split Wine Cellar Cooling Systems (WGS40) - Manual (75 pages)
  • Ducted Split Wine Cellar Cooling Systems (WGS40) - Manual (97 pages)
  • Ducted Wine Cellar Cooling Systems (WG40) - Manual (80 pages)
  • Humidifier 50 Hz - Manual (27 pages)
Home Brands Popular manuals Recently added
Manuals Directory

© 2012–2025, azmanual.top
All rights reserved.