Directory
Brands
Carrier manuals
Radiators
SINGLE PACKAGE ROOFTOP UNITS 48PG20-28
Manual

Carrier SINGLE PACKAGE ROOFTOP UNITS 48PG20-28 User Manual

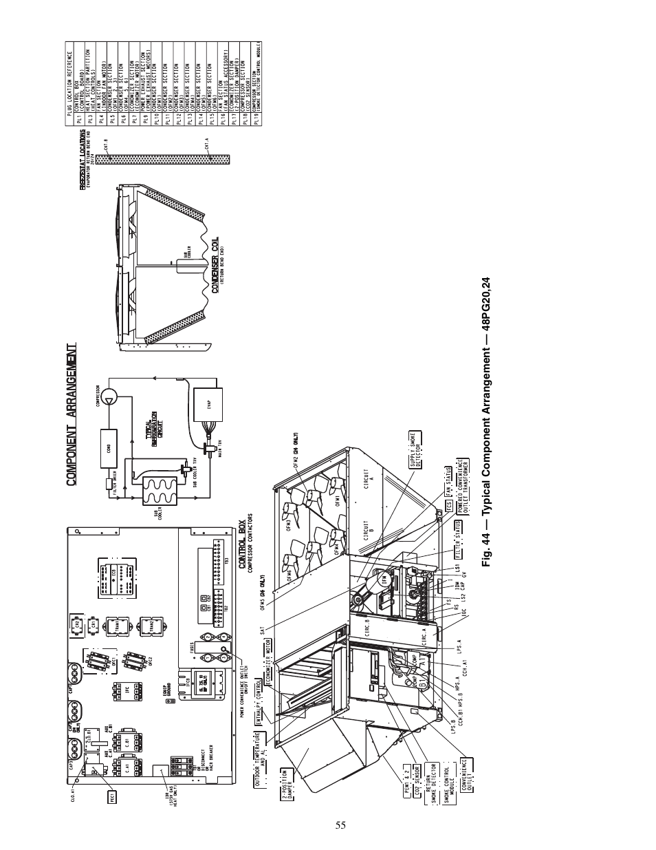
Page 55

  • Text mode
  • Original mode
Carrier SINGLE PACKAGE ROOFTOP UNITS 48PG20-28 User Manual | Page 55 / 64 Carrier SINGLE PACKAGE ROOFTOP UNITS 48PG20-28 User Manual | Page 55 / 64
Pages: 1 … 53 54 55 56 57 … 64
  • wrong Brand
  • wrong Model
  • non readable
See also other documents in the category Carrier Radiators:
  • WEATHERMASTER ZN030-105 (68 pages)
  • 48AJ (118 pages)
  • 48TJE004-014 (8 pages)
  • 48PD05 (12 pages)
  • ZONE-MIZER 48MA (46 pages)
  • 48MPD (64 pages)
  • 48LJD (33 pages)
  • 48NLT (27 pages)
  • LJD005-014 (8 pages)
  • WEATHER MASTER P5030-100 (76 pages)
  • 50PG03-16 (32 pages)
  • 58MCA (16 pages)
  • 58MCA (12 pages)
  • 40FS (18 pages)
  • SINGLE PACKAGE ROOFTOP UNITS ELECTRIC COOLING/GAS HEATING 48HJ015-025 (32 pages)
  • 48EZ(N)-A (41 pages)
  • 48DD (6 pages)
  • 48MA/50ME016-040 (48 pages)
Home Brands Popular manuals Recently added
Manuals Directory

© 2012–2025, azmanual.top
All rights reserved.