Search
Directory
Brands
SDC manuals
Power suppliers
FB4DC
Manual
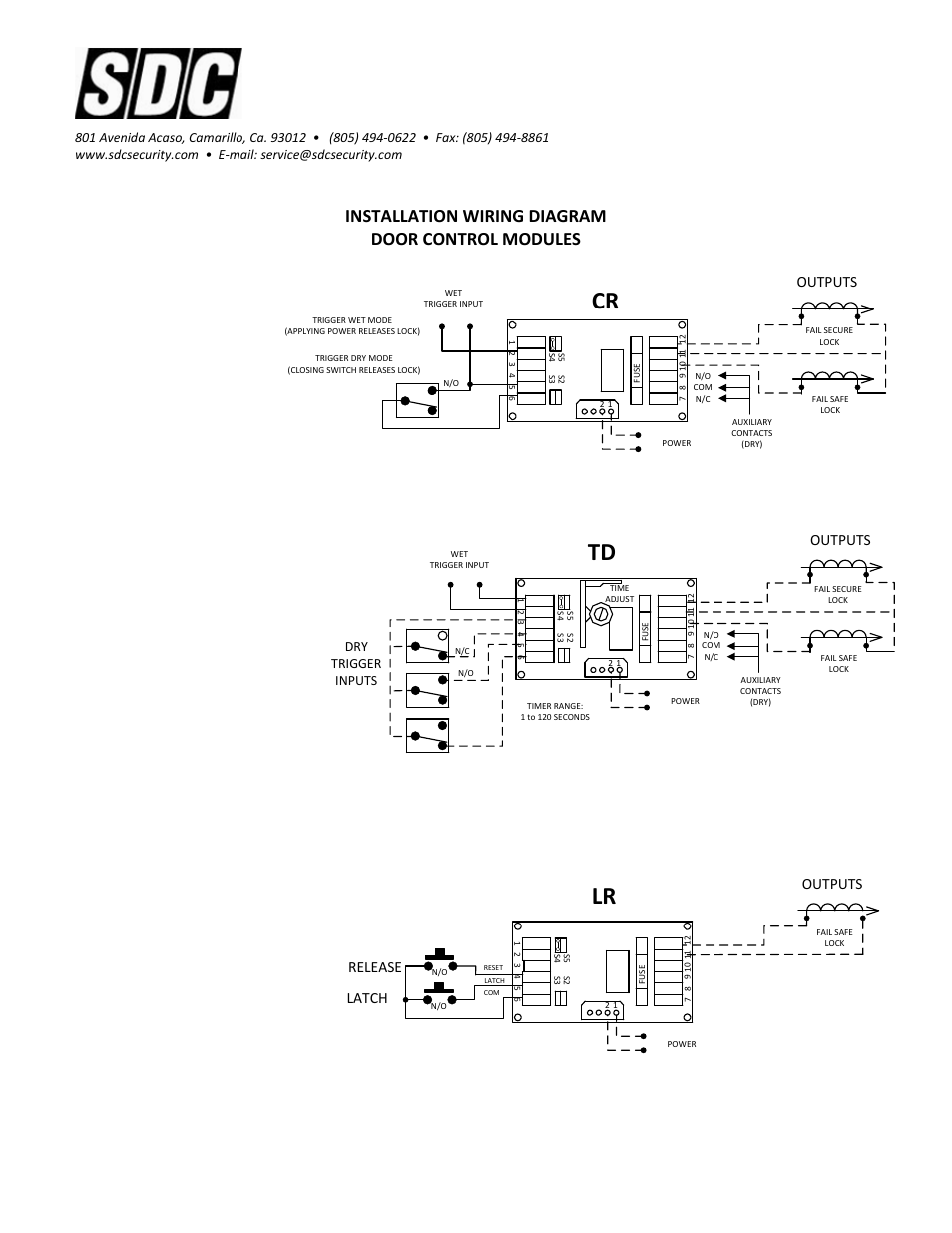
Cr-td,lr control modules, Security door controls, Installation wiring diagram door control modules – SDC FB4DC User Manual
Page 3: Latch outputs, Release, Outputs
Text mode
Original mode
Cr-td,lr control modules, Security door controls, Installation wiring diagram door control modules | Latch outputs, Release, Outputs | SDC FB4DC User Manual | Page 3 / 7
Pages:
1
2
3
4
5
6
7
wrong Brand
wrong Model
non readable
This manual is related to the following products:
FB-4
See also other documents in the category SDC Power suppliers:
602RF
(2 pages)
621 SERIES
(3 pages)
631RF/631RFA
(2 pages)
632RF
(2 pages)
634RF
(2 pages)
636RF
(1 page)
12VR
(1 page)
UR-1
(6 pages)
UR2-4
(33 pages)
UR4-8
(16 pages)
UR-2A
(2 pages)