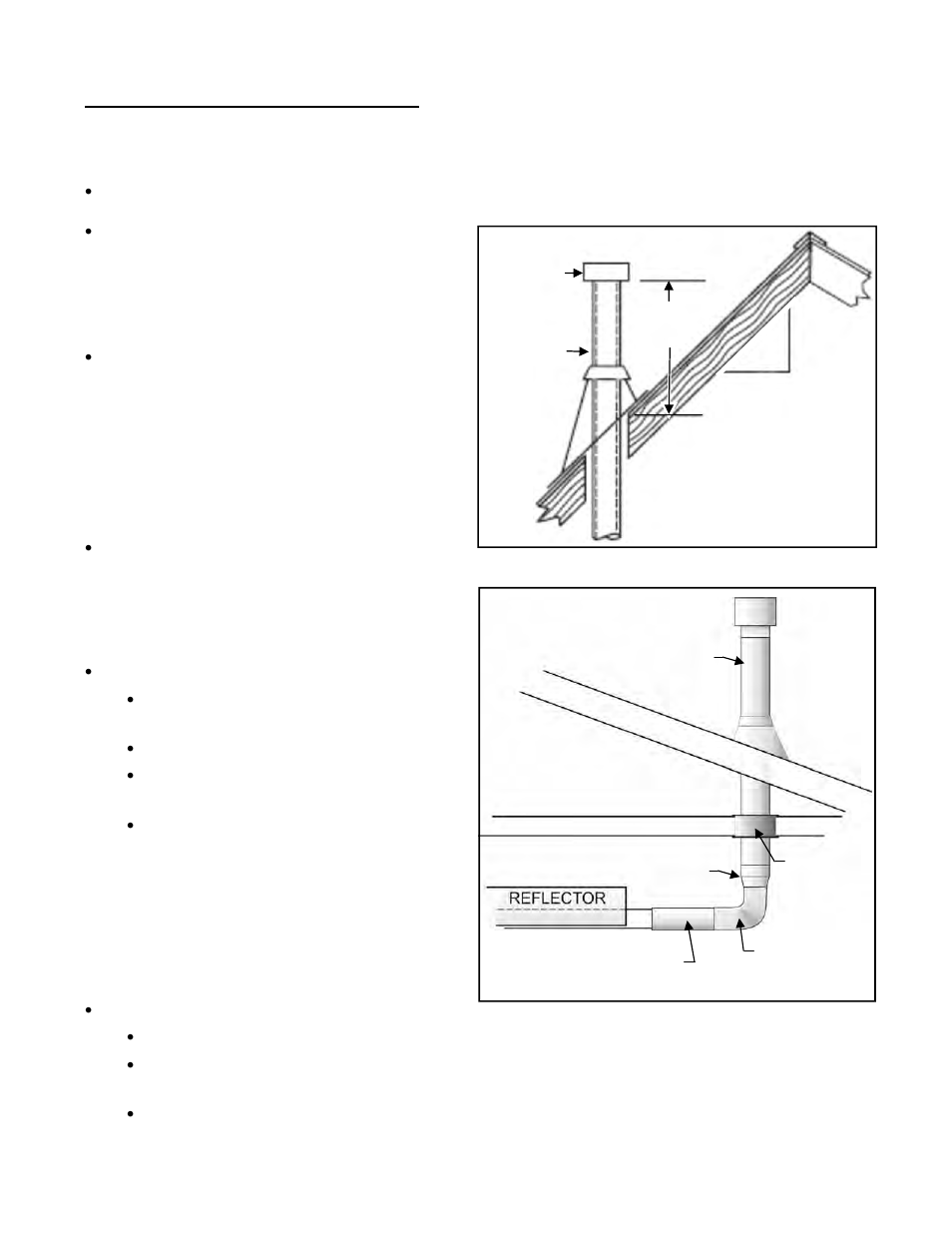
Schwank compactSchwank P40-R User Manual
Page 23
See also other documents in the category Schwank Radiators:
- primoSchwank (38 pages)
- ecoSchwank-X (35 pages)
- ecoSchwank-X 36 (36 pages)
- ultraSchwank UHE (54 pages)
- premierSchwank STS-JZ (67 pages)
- duraSchwank - Steel SPW-JZ (58 pages)
- duraSchwank - Powder SPW-JZ (56 pages)
- builderSchwank S100 (69 pages)
- P40U Fenwal (51 pages)
- Vacuum Series (55 pages)
- 2-Stage Series (59 pages)
- bistroSchwank Series (45 pages)
- supremeSchwank 2300 (35 pages)
- Parasol Series Portable (16 pages)
- Parasol Series Post Mount (16 pages)
- Parasol Series Post Mount 24 volt (29 pages)
- sportSchwank (25 pages)
- IEP-1520 (18 pages)
- IEP-1524 (18 pages)
- IEP-2024 (18 pages)
- IEP-4024 (19 pages)
- ThermoControl Plus Series CM-485 (23 pages)
- ThermoControl Plus 2 (37 pages)
- ThermoControl Plus 4 (39 pages)
- ecoSchwank Millivolt (19 pages)
- SEM(U) (39 pages)
- SEB(U) (35 pages)
- SER(IR) (35 pages)
- STR-JZ (54 pages)
- STR-USA (33 pages)
- STR-CANADA (33 pages)
- STSp-USA (39 pages)
- STSp-CANADA (41 pages)
- STSp-WP (47 pages)
- STSp-WP1 (6 pages)
- STW-JZ1 (57 pages)
- agroSchwank (17 pages)
- ATH Brooder/Agricultural Series (32 pages)
- patioSchwank 1100 (17 pages)
- 4001J Portable Patio Heater (17 pages)
- 4N/L51-J Pole Mounted (19 pages)
- SCH-90 Construction (17 pages)
- SCH-200 Construction (15 pages)
