Directory
Brands
H&H Specialties manuals
Equipment
400 Series Track Installation Instructions
Manual

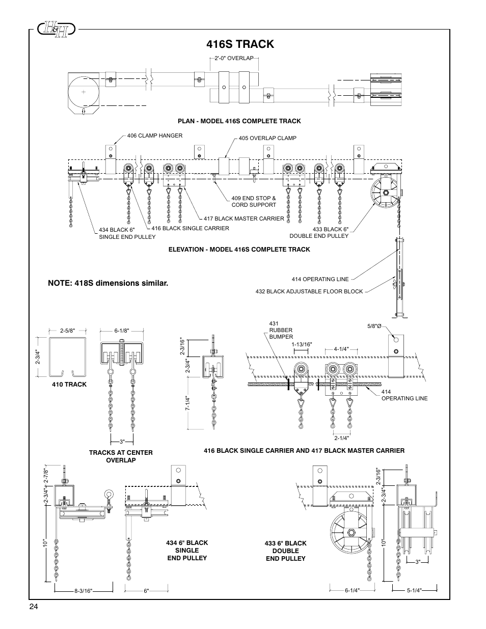
416s track – H&H Specialties 400 Series Track Installation Instructions User Manual

Page 10

  • Text mode
  • Original mode
416s track | H&H Specialties 400 Series Track Installation Instructions User Manual | Page 10 / 11 416s track | H&H Specialties 400 Series Track Installation Instructions User Manual | Page 10 / 11
Pages: 1 … 6 7 8 9 10 11
  • wrong Brand
  • wrong Model
  • non readable
See also other documents in the category H&H Specialties Equipment:
  • 100 Series Track Installation Instructions (7 pages)
  • 200 Series Track Installation Instructions (7 pages)
  • 300 Series Track Installation Instructions (9 pages)
  • 500 Series Track Installation Instructions (9 pages)
  • 600 Series Track Installation Instructions (7 pages)
  • 700 Series Track Installation Instructions (3 pages)
  • 100 Series Track Operation & Maintenance (3 pages)
  • 200 Series Track Operation & Maintenance (3 pages)
  • 300 Series Track Operation & Maintenance (3 pages)
  • 400 Series Track Operation & Maintenance (3 pages)
  • 500 Series Track Operation & Maintenance (3 pages)
  • 600 Series Track Operation & Maintenance (3 pages)
Home Brands Popular manuals Recently added
Manuals Directory

© 2012–2025, azmanual.top
All rights reserved.